
2,992 €/m2
Looking for a home where comfort, design, and nature come together? Discover this stunning 3-bedroom ground floor apartment in the exclusive Pure Sun 2 development in Manilva (Málaga), just minutes from the Mediterranean Sea.
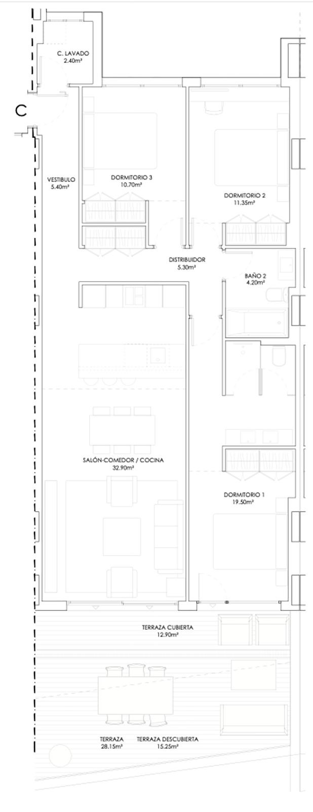
Key Features:
- 3 spacious bedrooms, including a 19.50 m² master suite
- 2 full bathrooms with premium finishes
- Open-plan living-dining area with integrated kitchen – 32.90 m² of comfort and light
- Separate laundry room
- Generous entrance hall and efficient layout
- Private terrace of 28.15 m² (12.90 m² covered + 15.25 m² uncovered) – ideal for year-round sunshine
- Total built area: 133.31 m²
Resort-Style Living
Set in a peaceful natural environment, this home is part of a modern residential complex with exceptional communal amenities:
- Saltwater swimming pool
- Outdoor jacuzzi and chill-out area
- Gym, spa, solarium, picnic area, and yoga/meditation zone
- Social lounge and changing rooms
- Bicycle parking
Sustainable Design & Customization
- High energy efficiency rating thanks to eco-friendly construction and aerothermal systems
- Option to personalize finishes with three interior design collections (Earth, Sea, Air)
- Fully equipped kitchen with integrated appliances
- High-quality exterior joinery and superior thermal and acoustic insulation
Prime Location
- Just 6 minutes from La Duquesa Marina
- Close to beautiful beaches like Sabinillas and Punta Chullera
- Near supermarkets, medical centers, golf courses, and all essential services
Features
Climate control
-
Air Conditioning
Features
-
Covered Terrace
-
Gym
-
Jacuzzi
-
Private Terrace
-
Sauna
-
Solarium
Orientation
-
South
Pool
-
Communal
Setting
-
Beachside
Views
-
Golf
-
Sea
Located in
Affordability
Calculate your monthly mortgage payments
Your est. monthly payment
Get Pre-QualifiedHomes-abroad collaborate with all major banks in Spain
Homes-abroad real estate, work with mortgage brokers and all major banks in Spain. Through this link you can apply for a mortgage in Spain.
Mortgage calculatorPurchase expenses
Our expenses calculator will provide an estimate of all costs involved in buying a house in Spain. Use these figures as a guideline only: the actual figures will vary according to the property's location and the bank you choose, among other factors. To the total, you must add your mortgage payments, and comisión de apertura if your bank charges it.