Detached Villa for sale in Benissa

Property ID: CPS-CBDS1496

€2,595,000

4,735 €/m2


548
4
beds
4
baths
964
plot

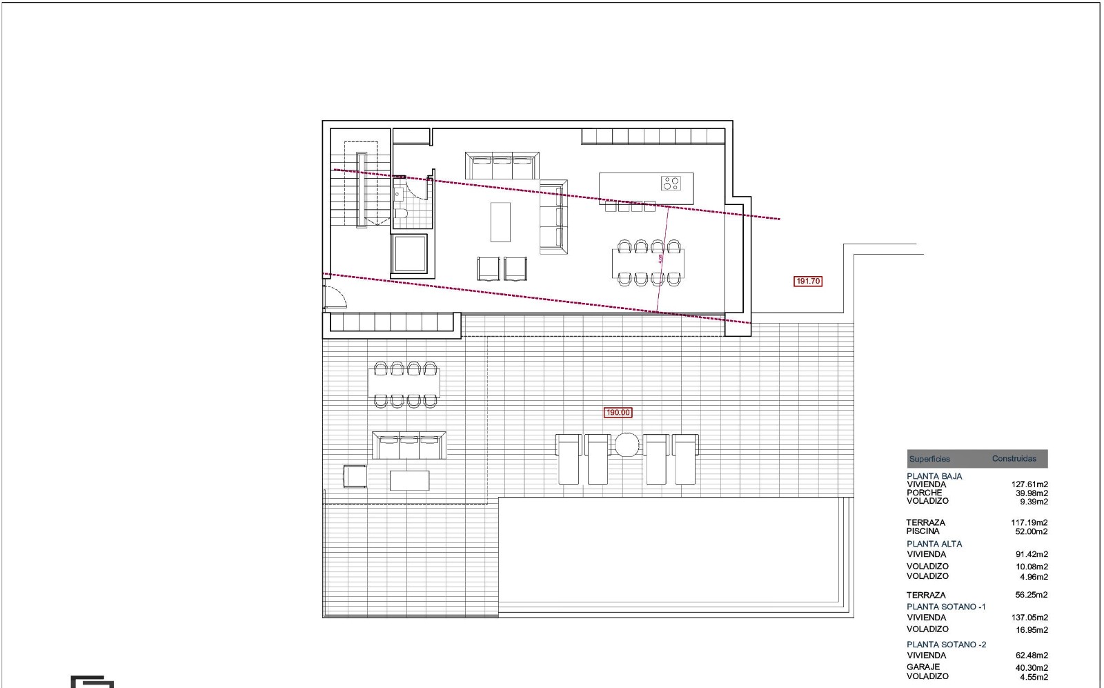
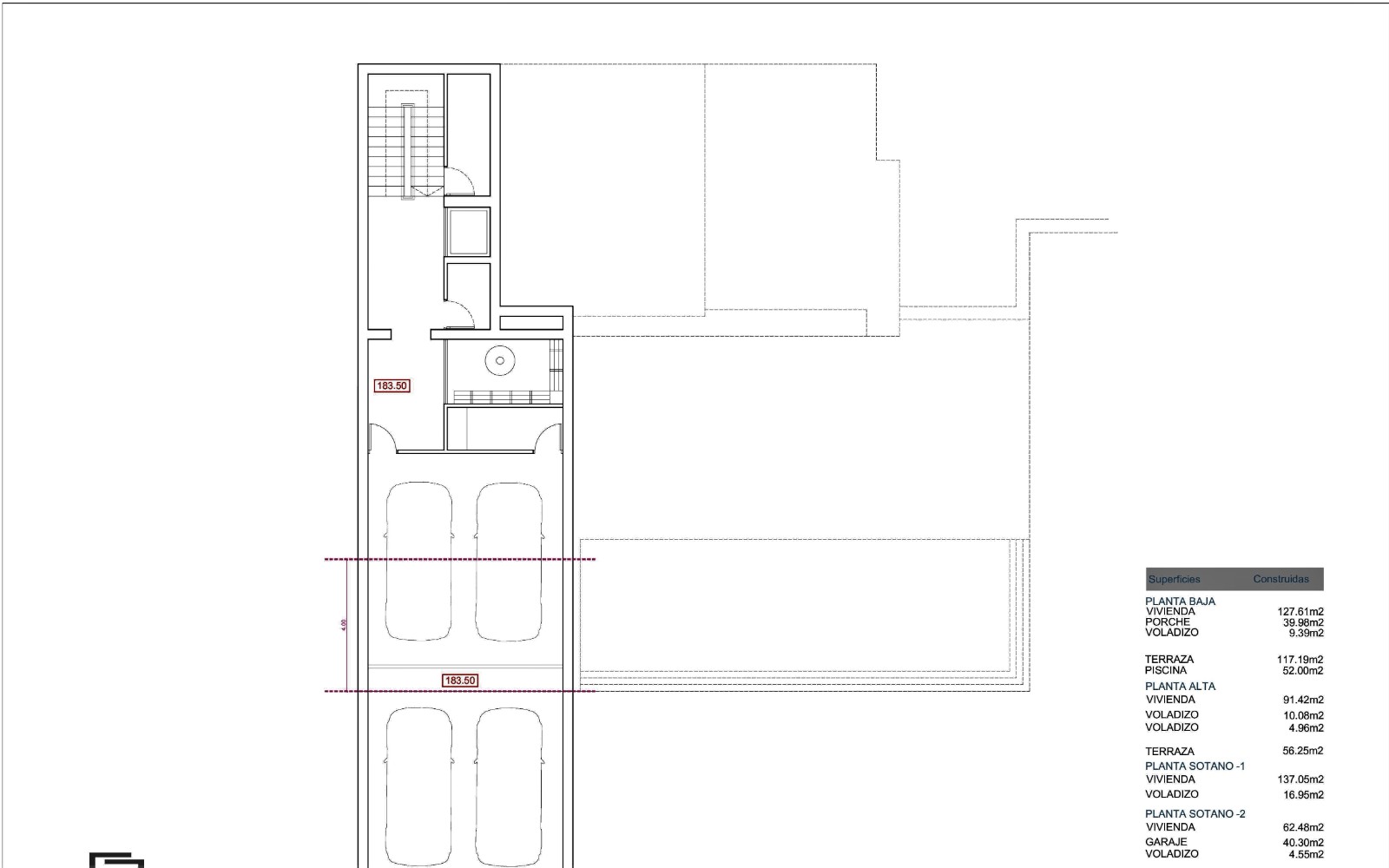
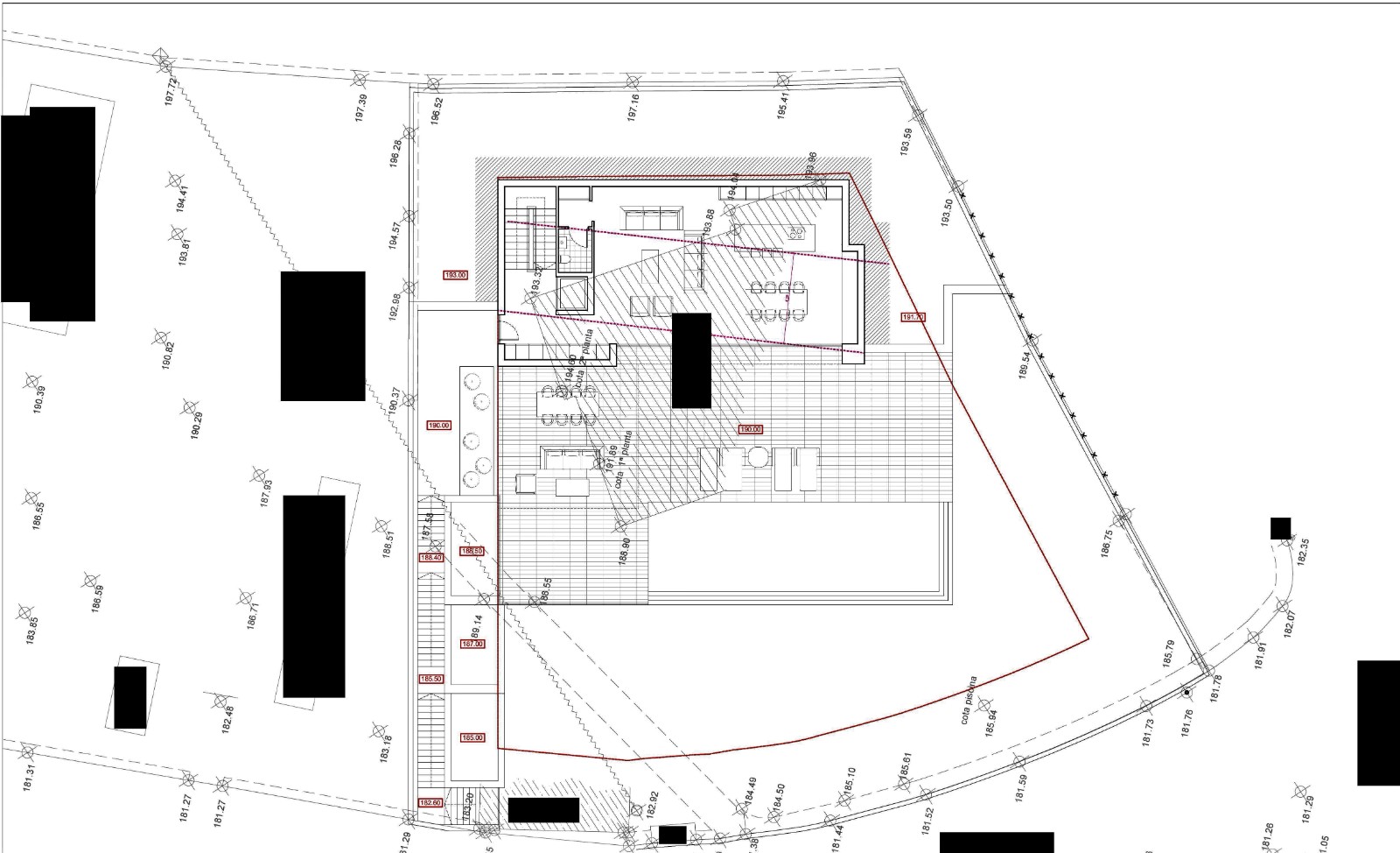
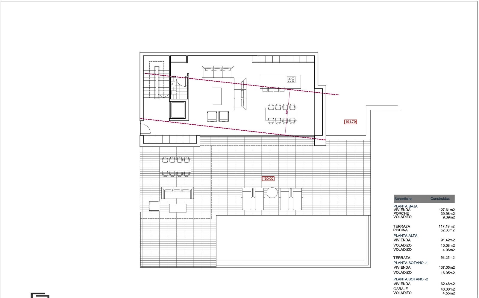
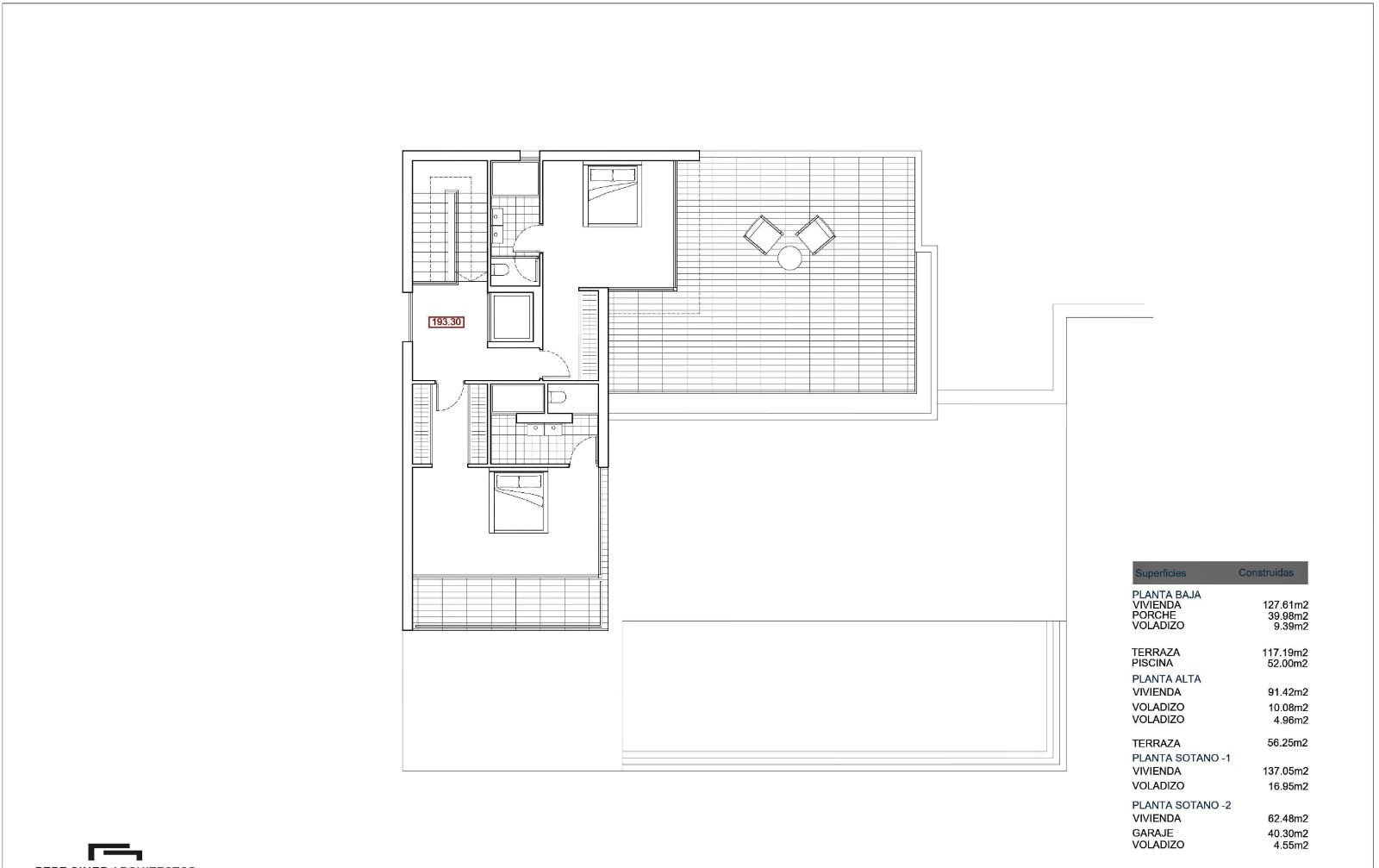
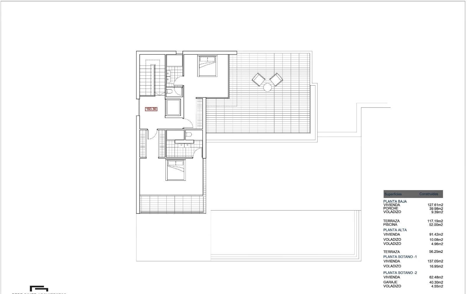
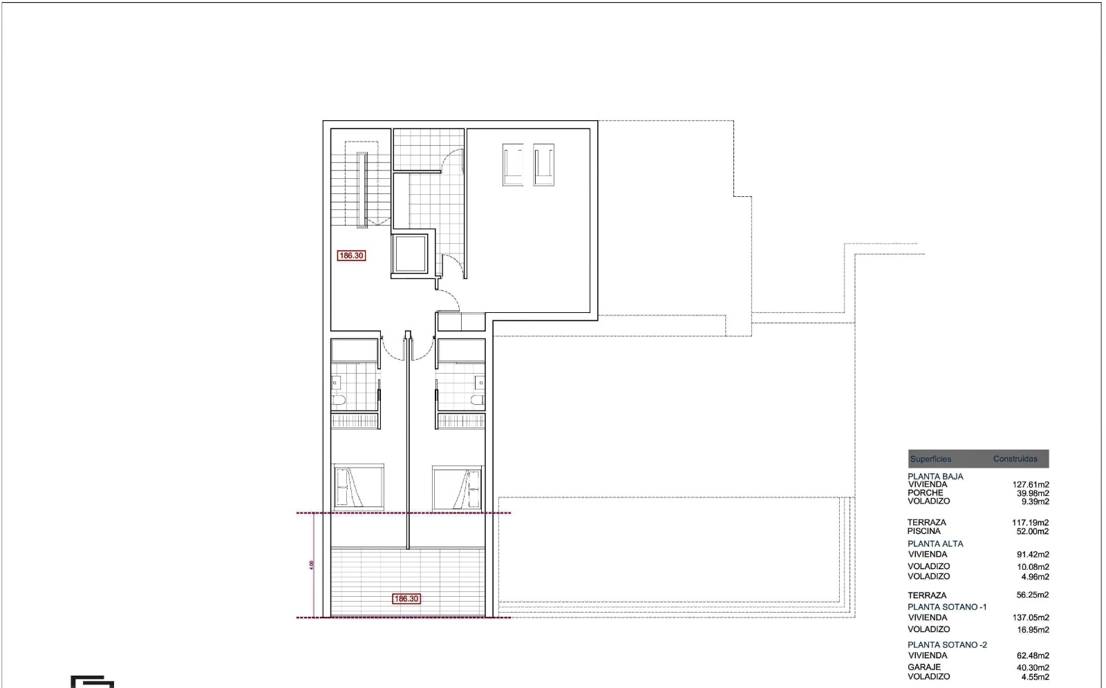
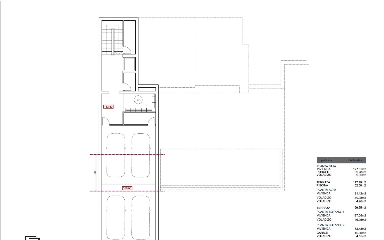
Project for a luxury villa to be built in the Montemar area of the Benissa coast with sea views and views to Peñón de Ifach. This villa, with exposed paneled concrete finishes, has 4 floors that are connected with an elevator and an internal staircase. The ground floor has a large open living-dining-kitchen area and a toilet. The kitchen is fully equipped and it has a cooking island. Sliding doors at ceiling height give direct access to a spacious terrace and a pool. The upper floor has two bedrooms with en-suite bathrooms and a terrace. The property has 2 basements. The basement number 1 has another two bedrooms, each with its own bathroom and a laundry room. The basement number 2 includes the gym, the wine cellar and a garage with capacity for 4 cars. The house has air conditioning (with ducts) and central heating with heat pump. There is an automatic entrance door with a separate pedestrian entrance and an intercom. On the same level as the main house is the swimming pool. It includes exterior carpentry with automatic shutters and mosquito nets in bedrooms, fitted wardrobes with modules and basic alarm installation. For further information please do not hesitate to contact us.

Features

Climate control

  • Air Conditioning
  • Central Heating

Features

  • Gym
  • lift
    Lift
  • home-improvement-12_1
    Utility Room
  • dresser-wardrobe
    Fitted Wardrobes

Parking

  • Garage

Setting

  • Close To Sea

Views

  • Sea

Located in

Affordability

Calculate your monthly mortgage payments

Your est. monthly payment

Get Pre-Qualified

Homes-abroad collaborate with all major banks in Spain

Homes-abroad real estate, work with mortgage brokers and all major banks in Spain. Through this link you can apply for a mortgage in Spain.

Mortgage calculator

Purchase expenses

Our expenses calculator will provide an estimate of all costs involved in buying a house in Spain. Use these figures as a guideline only: the actual figures will vary according to the property's location and the bank you choose, among other factors. To the total, you must add your mortgage payments, and comisión de apertura if your bank charges it.

Total expenses

You might like these properties too