Apartment for sale in Torrevieja

Property ID: MLC-MLSC4878699

€131,900

1,589 €/m2


83
2
beds
1
baths
0
plot

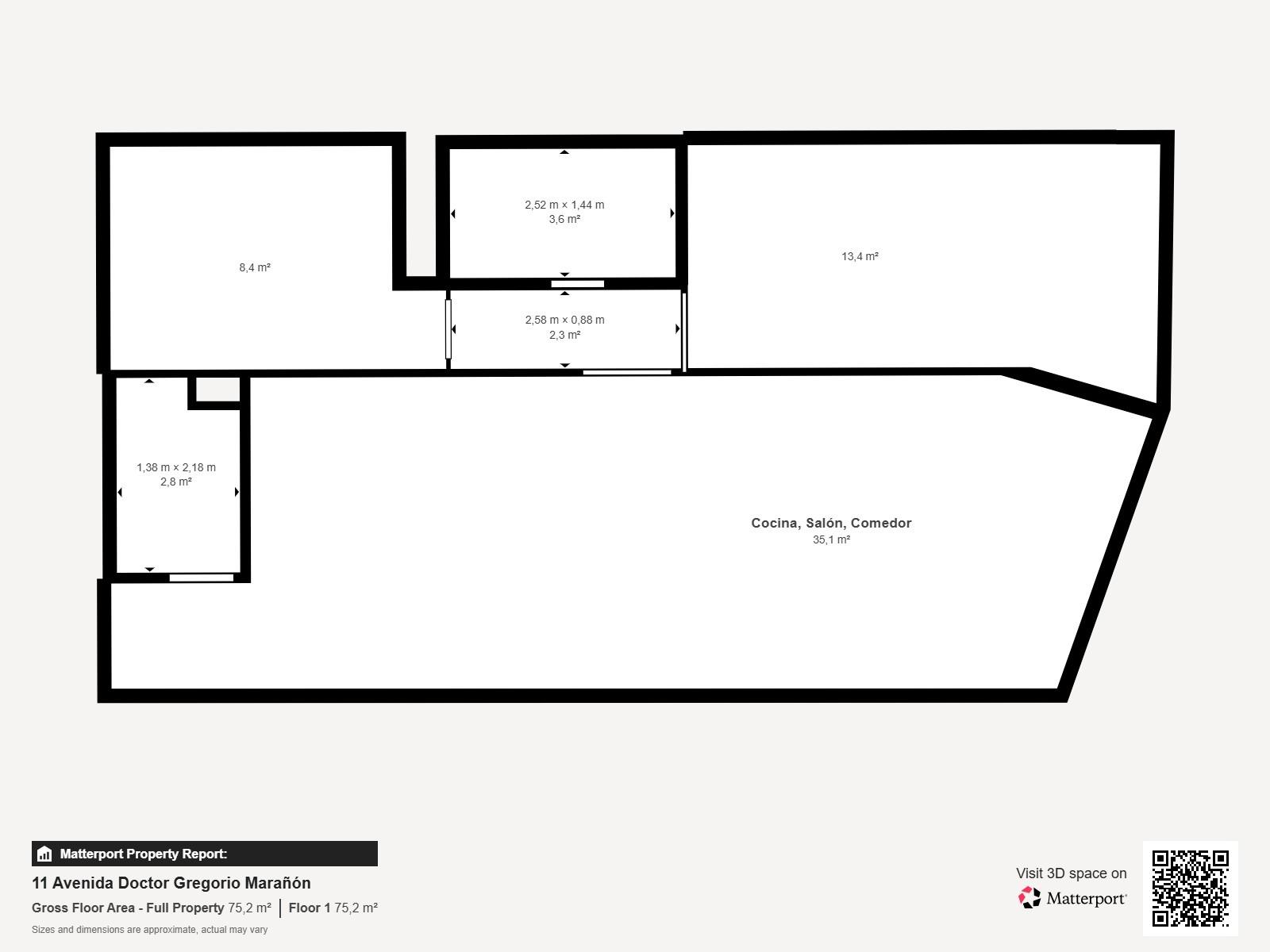
In one of the most sought-after areas of Torrevieja, next to the marina and just a few meters from the sea, this apartment is ideal for enjoying Mediterranean life with everything at hand. Its location makes it an excellent option for both year-round living and for those looking for a second residence or a safe investment in a high-demand area. 💡 A well-located opportunity with many possibilities With a price of 137,500 €, this property combines location, functionality, and comfort. Just a few steps from the Yacht Club and the beach, it is especially attractive for those who enjoy the sea, practice water sports, or simply wish to have all services nearby without giving up tranquility. 🏠 Main distribution and characteristics This apartment, renovated about 10 years ago, has 83 m² built and is practically distributed: 2 well-lit bedrooms. 1 functional and updated bathroom with shower. Spacious living-dining room, thanks to the incorporation of the terrace into the interior space, gaining spaciousness and brightness. 2 split-type air conditioning units to maintain the ideal temperature in summer. Pellet stove, perfect for heating the home efficiently during the winter months. Elevator in the building, which facilitates daily access. In addition, the building has a community patio at the entrance, ideal for leaving bicycles, something highly valued in coastal areas. 📍 Privileged location Located in the marina area of Torrevieja, just 100 meters from Acequión beach, this property is surrounded by services: supermarkets, pharmacies, restaurants, cafes, public transport, and walkways. If you have a boat or are thinking of getting one, the proximity to the yacht club makes this home a practical and comfortable choice. ℹ️ Other details of interest Selling price: 131,900 € Community fees: 95 € per quarter Annual IBI: 285 € Orientation: North Year of construction: 1982 (renovated 10 years ago) Built area: 83 m² Type of housing: Apartment No garage, storage room, or pool available Building with elevator Community patio at the entrance of the building 👥 Who might be interested in this property? Due to its location, this home is perfect for investors looking for profitability in a high occupancy tourist area, but also for couples or families who value living near the sea, with easy access to the yacht club and without needing to drive to move around the center. 📞 Interested? We provide all the details Request more information or schedule a visit. We are here to help you make a good decision. 🔒 Legal notice: This advertisement is not binding and may contain errors. It is shown for informational purposes only and is not contractual. The data presented are offered by third parties and are assumed to be correct. The offer may be subject to changes in price, withdrawal from the market, or modification without prior notice. The selling price does not include legal taxes or deed expenses.

Features

Climate control

  • Air Conditioning

Features

  • lift
    Lift
  • bus-2
    Near Transport
  • home-improvement-12_1
    Utility Room

Setting

  • Close To Sea

Located in

Affordability

Calculate your monthly mortgage payments

Your est. monthly payment

Get Pre-Qualified

Homes-abroad collaborate with all major banks in Spain

Homes-abroad real estate, work with mortgage brokers and all major banks in Spain. Through this link you can apply for a mortgage in Spain.

Mortgage calculator

Purchase expenses

Our expenses calculator will provide an estimate of all costs involved in buying a house in Spain. Use these figures as a guideline only: the actual figures will vary according to the property's location and the bank you choose, among other factors. To the total, you must add your mortgage payments, and comisión de apertura if your bank charges it.

Total expenses

You might like these properties too