Country house for sale in Búger

Property ID: MPG-573

€295,000

1,311 €/m2


225
4
beds
2
baths
21821
plot

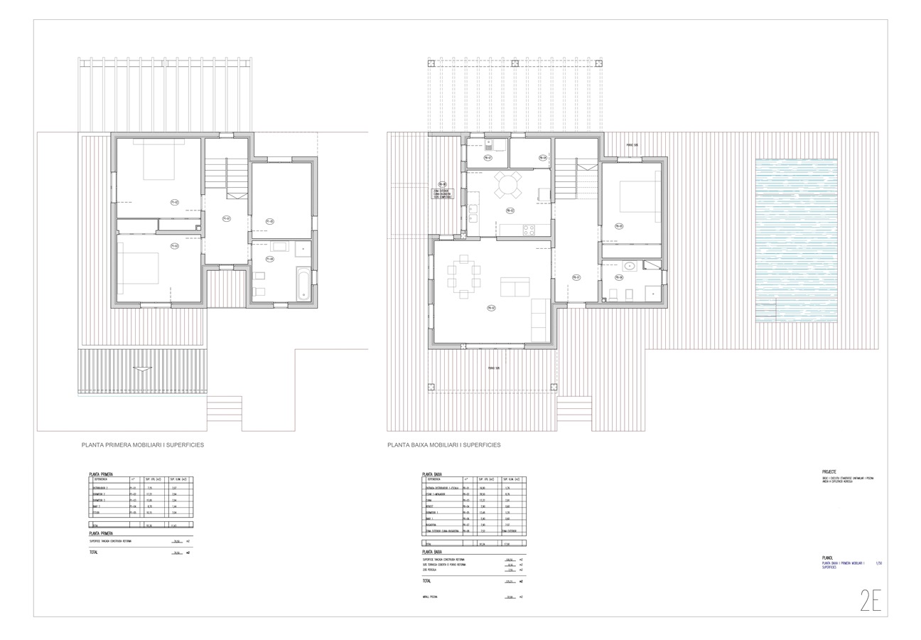
Finca Buger for sale For sale Mallorca Project for a 4 bedroom finca in Buger Mallorca A plot of 21.821m2 Basic licence granted. A rural plot in a very quiet area, but only four minutes to the village of Buger and with fast access to the motorway Buger is 32km to the airport in Mallorca and the property is 20 minutes’ drive to the beaches of the Bay of Alcudia. Two access to the plot from quiet country roads. The project situated in the center of the plot has views of the Sierra de Tramuntana, a area of holm oak forestry and is private quiet and secluded. The distribution of the project offers, Kitchen and lounge with a double bedroom and bathroom on the ground floor. With three bedrooms and a bathroom on the first floor. It is possible to change the distribution at the present moment, should the layout offered not suit a buyer. An opportunity to buy a plot with a license granted in a charming and peaceful location.

Features

Views

  • Mountain

Located in

Affordability

Calculate your monthly mortgage payments

Your est. monthly payment

Get Pre-Qualified

Homes-abroad collaborate with all major banks in Spain

Homes-abroad real estate, work with mortgage brokers and all major banks in Spain. Through this link you can apply for a mortgage in Spain.

Mortgage calculator

Purchase expenses

Our expenses calculator will provide an estimate of all costs involved in buying a house in Spain. Use these figures as a guideline only: the actual figures will vary according to the property's location and the bank you choose, among other factors. To the total, you must add your mortgage payments, and comisión de apertura if your bank charges it.

Total expenses

You might like these properties too