Land for sale in Binissalem

Property ID: MPG-695

€225,000

€/m2


0
beds
0
baths
234
plot

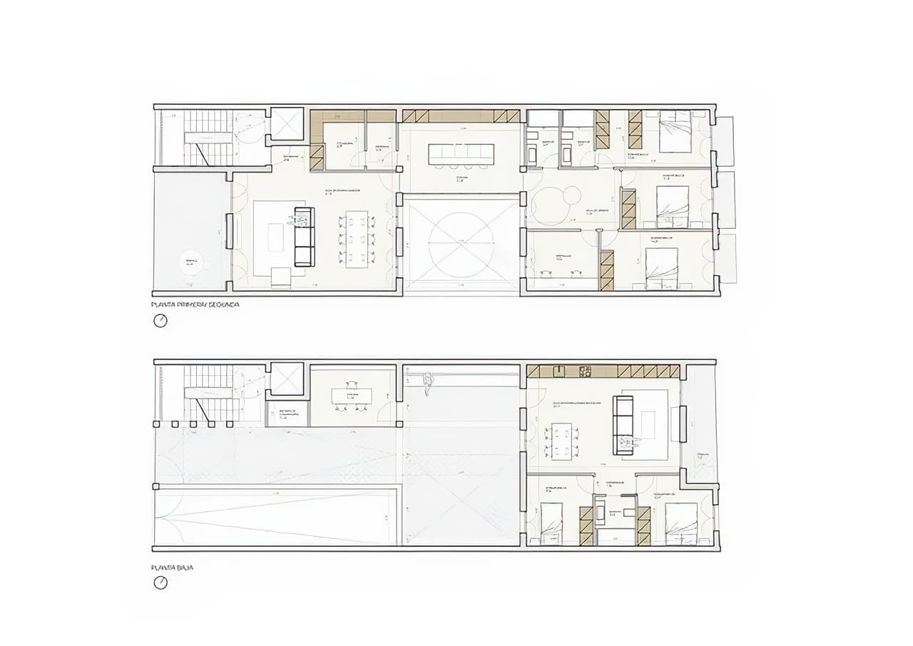
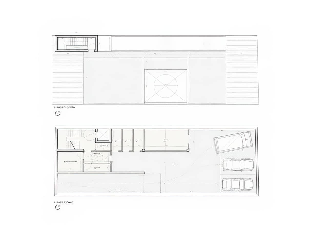
For sale in Binissalem build your dream in Binissalem: a 234 m2 plot. Perfect for building a single family house or for 3 apartments, near the main plaza and the train station. Located in the central area of the village of Binissalem, close to the main palza and a few mintues walk from the train station. Ideal to build either a single-family house, or to build three apartments plus a basement with parking and storage rooms for each of the apartment. There is a preliminary project with the designed of three homes: ground floor, first floor, second floor and basement with 3 parking spaces. It is also possiable to modify the draft project or to create a new one. First and second floor: Dining room of 41 m2. with exit to terrace of 18.34 m3. Kitchen of 21.45 m2. with pantry of 3.78 m2. and laundry of 6.08 m2. 3 bedrooms: 13.92 m2 double bedroom with en suite bathroom and dressing room, 11.27 m2 double bedroom with wardrobe and 14.20 m2 double bedroom. with wardrobe 2 bathrooms of 3.92 m2. Office of 9.04 m2. Games room of 11.61 m2. 1 balcony for each room. Ground floor: Large terrace on a floor of 45.09 m2. Living-dining room with open kitchen of 35.17 m2. with exit to terrace of 7.47 m2. 2 bedrooms with wardrobes: 10 m2. Office of 11.32 m2. Bathroom of 4.22 m2. Basement: Three storage rooms of 3.67 and a storage room of 15.43 m2. Parking area for the three homes. Very quiet area and a village with all services including train. For more information please contact us. Binissalem Mallorca within the county of the Raiguer Mallorca. Located in the centre of the island with good transport links to Palma de Mallorca and the beaches in the north of the island Binissalem is a vibrate small town. Famous for wine production and is the oldest and largest Denomination de Origen in Mallorca. From its origins a wealthy community Binissalem has many large historic buildings built with the local stone which the village is famous for. The original settlement was of Moorish origin the name of the village means the sons of (Binis) peace or salvation (Salem), Biniagual is a small hamlet included in the municipality.

Features

Features

  • bus-2
    Near Transport

Setting

  • Close To Shops
  • Close To Schools

Located in

Affordability

Calculate your monthly mortgage payments

Your est. monthly payment

Get Pre-Qualified

Homes-abroad collaborate with all major banks in Spain

Homes-abroad real estate, work with mortgage brokers and all major banks in Spain. Through this link you can apply for a mortgage in Spain.

Mortgage calculator

Purchase expenses

Our expenses calculator will provide an estimate of all costs involved in buying a house in Spain. Use these figures as a guideline only: the actual figures will vary according to the property's location and the bank you choose, among other factors. To the total, you must add your mortgage payments, and comisión de apertura if your bank charges it.

Total expenses

You might like these properties too