Land for sale in Ses Salines

Property ID: MPG-793

€550,000

4,365 €/m2


126
3
beds
3
baths
626
plot

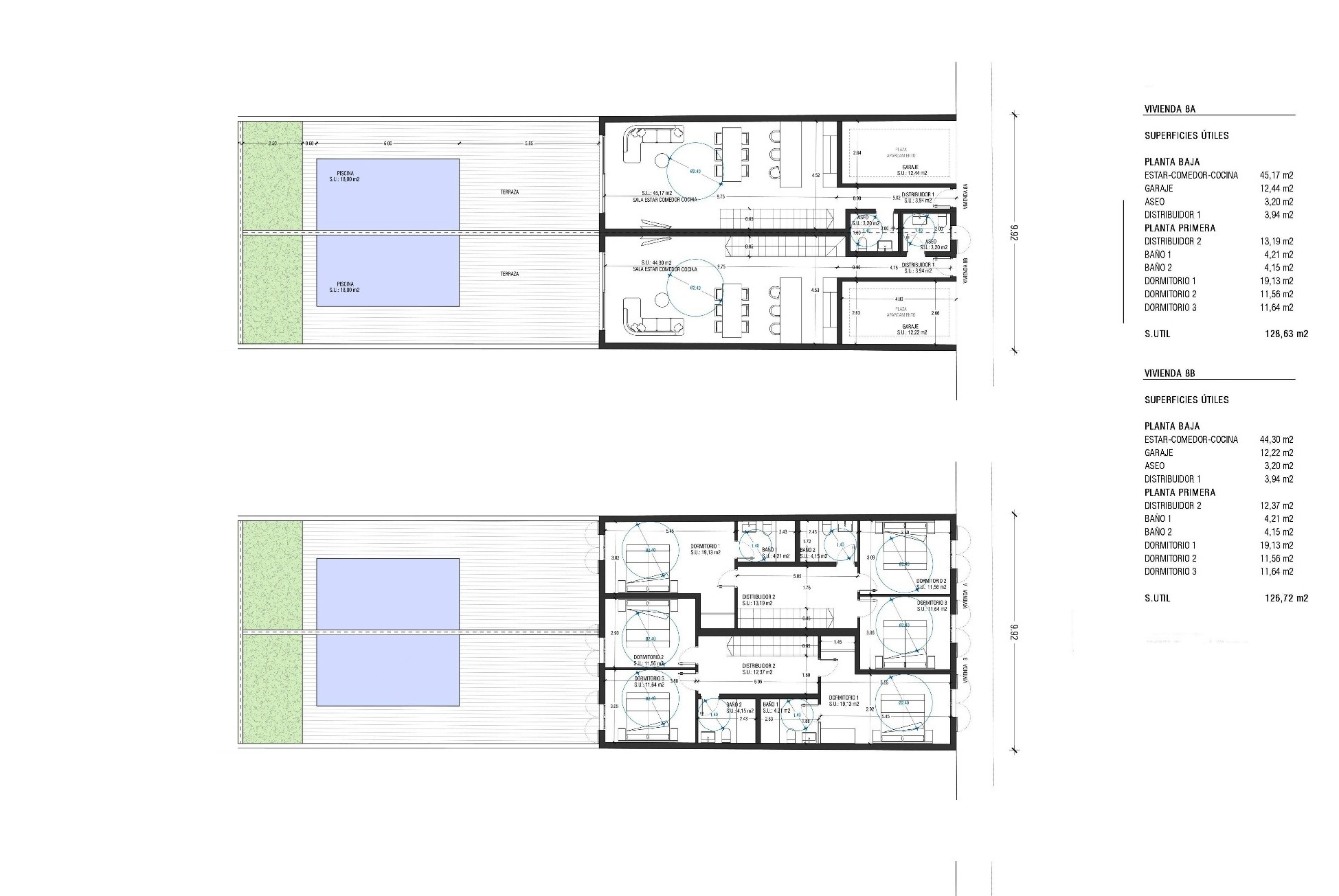
Urban Land For Sale in Ses Salines Mallorca. Looking for an investment opportunity in one of the most charming towns in southern Mallorca? This urban plot has a project applied for the construction of four semi-detached houses, ideal for developing modern homes in a quiet and authentic setting. The license is pending, it has a project for the construction of the four houses each with a guest toilet and open plan kitchen diner and lounge on the ground floor  a garden, garage and the option for a swimming pool. With Three double bedrooms and two bathrooms on the first floor one of which is an ensuite bathroom for the master bedroom. Ses Salines is famous for its proximity to beaches like Es Trenc and its unique Mediterranean atmosphere. The images shown are the proposals for the project application, and plans of the distribution of the proposed construction. Ses Salines Mallorca in the Migjorn de Mallorca to the southeast of Mallorca Ses Salines is a small coastal Town the area has ten beaches, most of them fine white sand and crystal clear waters, which include a small part of the Coto beach between the municipality of Salinero and Campos, as well as those of El Marqués (es Marquès), Bassa del Cabot , Cala Galiota, El Puerto (es Port), El Dols (es Dolç), Can Curt, El Delfín (es Delfí o Dofí), El Carbón (es Carbó) and Las Roquetas (ses Roquetes). Please contact us for more information and details of the project application.

Features

Pool

  • Private pool

Setting

  • Close To Shops
  • Close To Marina
  • Close To Sea

Located in

Affordability

Calculate your monthly mortgage payments

Your est. monthly payment

Get Pre-Qualified

Homes-abroad collaborate with all major banks in Spain

Homes-abroad real estate, work with mortgage brokers and all major banks in Spain. Through this link you can apply for a mortgage in Spain.

Mortgage calculator

Purchase expenses

Our expenses calculator will provide an estimate of all costs involved in buying a house in Spain. Use these figures as a guideline only: the actual figures will vary according to the property's location and the bank you choose, among other factors. To the total, you must add your mortgage payments, and comisión de apertura if your bank charges it.

Total expenses

You might like these properties too