Land for sale in Marratxí

Property ID: MPG-826LP

€1,200,000

2,817 €/m2


426
14210
plot

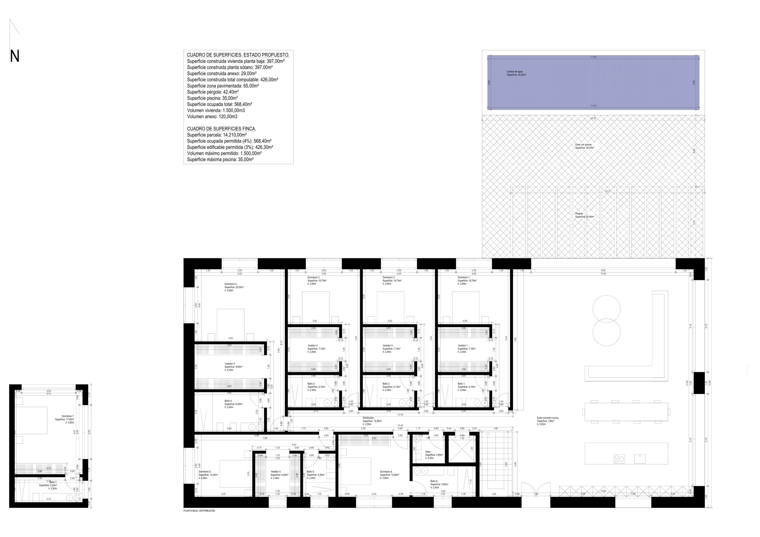
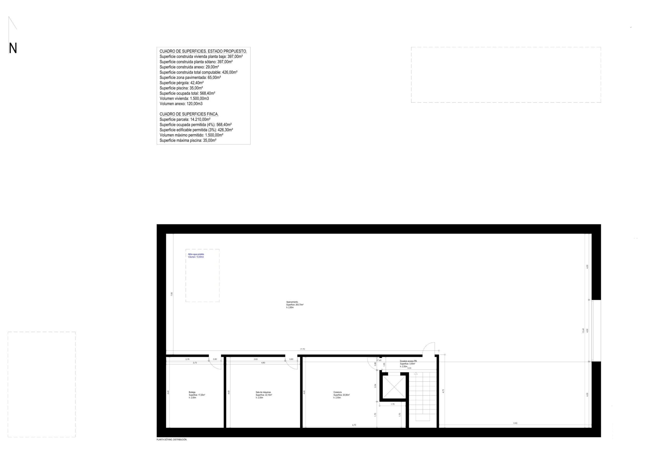
Land for sale in Mallorca with a project for a villa of 426m2.   This a project for a luxurious residence which has just be granted full planning permission to build in the picturesque area of Marratxinet, one of Marratxí’s most exclusive neighbourhoods, this tranquil plot provides breath taking panoramic views. This stunning home features a design that beautifully merges modern sophistication with a respect for the surrounding natural landscape, offering a lifestyle like no other. The centre piece of this rural plot a spacious and comfortable villa of 426m2 with an open plan living space of 126m2 with a double height vaulted ceiling of 12.6m2 with a lounge and kitchen dinner which is filled with sun light from the pool and garden surrounding the house. In an adjacent wing of the house there are six double bedrooms each with an ensuite bathroom and a dressing room or fitted wardrobes. Below a huge basement which has a parking area of 263,70m2 with a 17,25m2, wine cellar and 25,90m2 utility room. A 29m2 annex which offers the buyer the option of seventh bedroom with an ensuite bathroom or a private office or an artist’s studio. For more information, we have detailed plans and descriptions of installations and finishes please contact us. Marratxinet the original foundation agricultural settlement of Marratxí. The municipality takes its name from this small hamlet, but as the agricultural income declined in the middle of the 19th century the administration of the municipality moved to the more wealth settlements of Sa Cabaneta and Marratxi. The original village remains as a gem of traditional Mallorcan architecture along one street called Sa Font.

Features

Pool

  • Private pool

Located in

Affordability

Calculate your monthly mortgage payments

Your est. monthly payment

Get Pre-Qualified

Homes-abroad collaborate with all major banks in Spain

Homes-abroad real estate, work with mortgage brokers and all major banks in Spain. Through this link you can apply for a mortgage in Spain.

Mortgage calculator

Purchase expenses

Our expenses calculator will provide an estimate of all costs involved in buying a house in Spain. Use these figures as a guideline only: the actual figures will vary according to the property's location and the bank you choose, among other factors. To the total, you must add your mortgage payments, and comisión de apertura if your bank charges it.

Total expenses

You might like these properties too