Detached Villa for sale in Alcudia

Property ID: POP-Bonaire2777

€2,800,000

5,833 €/m2


480
4
beds
4
baths
1200
plot

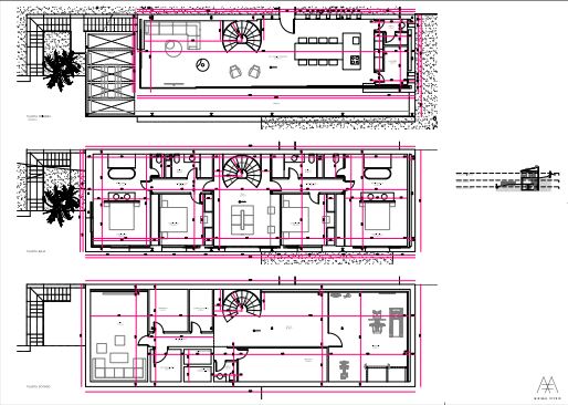
This property for sale in Mallorca is a modern villa in the highly sought after area of Bonaire in the area of Alcudia in the north of the island. This is a project that has been designed as a delight to the senses and as a perfect oasis of peace. The villa will have 480sqms of constructed surface space on a 1.200sqm plot. When finished, on the upper floor there will be a large open plan space with lots of natural light, views of the garden and access to a covered terrace. The kitchen will be open to the dining room and will have an island and fully integrated appliances. There will also be a laundry/larder and a guest toilet. In the living room there will be a designer fireplace. On the ground floor, reached via a spiral staircase there will be a landing space opening out onto a large terrace and a solarium next to the pool. On the same level there will be four bedrooms and four bathrooms, two of them ensuite. In the basement there will be a fitness space, ahome cinema and a lot of storage room. On the outside of the property there will be a covered terrace, with space for entertaining and a garden with a lawn plus the abovementioned pool. Top quality materials will be used for building the villa and all finishes will be to the highest specification.

Features

Climate control

  • fireplace
    Fireplace

Features

  • Covered Terrace
  • Solarium
  • dresser-drawers-5
    Storage Room

Located in

Affordability

Calculate your monthly mortgage payments

Your est. monthly payment

Get Pre-Qualified

Homes-abroad collaborate with all major banks in Spain

Homes-abroad real estate, work with mortgage brokers and all major banks in Spain. Through this link you can apply for a mortgage in Spain.

Mortgage calculator

Purchase expenses

Our expenses calculator will provide an estimate of all costs involved in buying a house in Spain. Use these figures as a guideline only: the actual figures will vary according to the property's location and the bank you choose, among other factors. To the total, you must add your mortgage payments, and comisión de apertura if your bank charges it.

Total expenses

You might like these properties too