 
  853 €/m2
*** Investment Opportunity!!! *** Building to Renovate in Avda Reyes Católicos, Alhaurín de la Torre, Málaga *** Feasibility Study Completed *** Residential Use *** Possibility of Building a Multi-Family Building with 9 Homes with Underground Parking, Storage Units and Commercial Premises ** * 3 Levels above Ground (in addition to Basement and Ground Level) *** Ideal Location: 15 Minutes by Car from the Center of Malaga ***
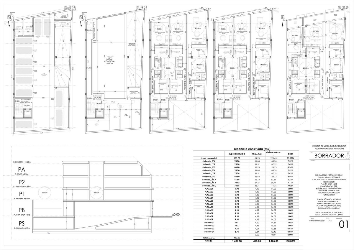
This is a great investment opportunity considering the possibilities of the building, in which it is possible to build a total of nine multi-family homes, underground parking (with nine spaces and four storage rooms) and a 156 m2 commercial area. It would be possible to build two additional levels: attic and basement.
The use is residential and there is already a construction project with a feasibility study, so it could begin to be marketed within a period of six months from its purchase.
Its location is ideal, since it is in one of the most central avenues of Alhaurín de la Torre, a quiet and safe municipality just ten minutes by car from the center of Malaga and the beach.
For more information contact us.
Features
Condition
- 
Renovation Required
Features
- 
Covered Terrace
- 
Lift
- 
Fitted Wardrobes
- 
Near Transport
- 
Private Terrace
- 
Solarium
- 
Storage Room
- 
Utility Room
- 
Ensuite Bathroom
- 
Staff Accommodation
Orientation
- 
North
- 
North East
- 
South East
- 
South
- 
South West
- 
North West
Security
- 
Gated Complex
- 
Safe
Setting
- 
Town
- 
Commercial Area
- 
Close To Shops
- 
Close To Town
- 
Close To Schools
Utilities
- 
Electricity
- 
Drinkable Water
- 
Telephone
- 
Gas
Views
- 
Mountain
- 
Panoramic
- 
Urban
Located in
Affordability
Calculate your monthly mortgage payments
Your est. monthly payment
Get Pre-QualifiedHomes-abroad collaborate with all major banks in Spain
Homes-abroad real estate, work with mortgage brokers and all major banks in Spain. Through this link you can apply for a mortgage in Spain.
Mortgage calculatorPurchase expenses
Our expenses calculator will provide an estimate of all costs involved in buying a house in Spain. Use these figures as a guideline only: the actual figures will vary according to the property's location and the bank you choose, among other factors. To the total, you must add your mortgage payments, and comisión de apertura if your bank charges it.
 
   
   
   
   
   
   
   
   
   
   
   
   
   
   
   
   
   
   
   
   
   
   
   
   
   
   
   
   
  