 
  €/m2
Project plot with license, oriented to investors who want a fully licensed and prepared project!
This project includes;
1. Plot of 6200m2 in Marbella club golf (one of the most prestigious surroundings around Marbella)
2. Fully licensed project
3. Request for proposal study (2 rounds with Project Manager Architect), incl. all documentation
4. Renderings & video (for commercial purposes).
If the villa is completely built, it can be sold at 5.5M€ or more.
With a plot price of 945K, and fully finished project, this is an easy start for an investor, and very good margins can be realized!!!
Description Villa and domain:
In one of the most exclusive areas of Marbella, Marbella club golf, we have a beautiful plot. Sea views, golf views over the Marbella club golf and lush nature characterize this plot of more than 6.000m2!
This 24h high-level security domain, features purely exclusive villas a horse riding center, charming clubhouse and an 18-hole golf course with many natural undulations. This renowned 18 hole golf club has been around for over 70 years and is known as one of the best clubs in Spain. Marbella Club brings its people together in the clubhouse, where the excellent menu attracts many club members and residents every day. In short, this cozy atmosphere makes you feel right at home.
The architect with years of experience in this region, designed a masterpiece that feels practical and homely at the same time. The oasis of green is drawn in as the large floor tiles extend from inside to outside, and even into the 75m2 pool! This way, one creates a natural place of tranquility.
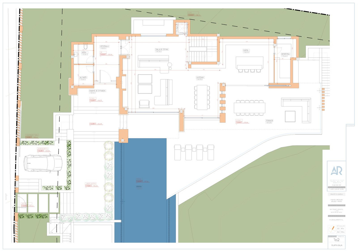
The villa-project includes 776m2 of indoor area and 357m2 of terraces, distributed over 3 floors, each with their own individuality!
Below are the bodega, exclusive garage for 5 cars, technical rooms, gym and 3 suites each with dressing room and bathroom.
From each room and the gym you can enjoy the view into the beautiful nature that we intentionally leave untouched. Deer walk through the 5000m2 wooded area which you can see from this floor on a regular basis.
Above we have the entrance hall with wardrobe, guest toilet, living space, dining-area, kitchen and 2nd kitchen. From each of these rooms one has a view over the crests of the forest to the sea, the golf and the beautiful mountain scenery. Because of its south orientation the villa with adjoining pool also enjoys the Mediterranean sun all day.
This part of the house includes 202m2 of interior space and 160m2 of terraces, as well as a 75m2 swimming pool, which overflows to three sides and where the water level is equal to the terraces.
Lastly, the upper level consists of the Master bed- & bathroom, with an indoor area of 84m2 and adjoining 127m2 terraces. From these terraces you can enjoy your built-in Jacuzzi, semi-covered chill-out area through a built-in bioclimatic pergola.
On each floor, the glass windows are TRUE ‘floor-to-ceiling' with minimalist aluminum partitions so that you maintain maximum integration between inside and outside, even with closed panels.
In recent years Marbella is known for its modern, white ‘blocky' villas, which we want to stay away from as much as possible with this design, by providing the design with natural elements that in this way ‘blend' with the natural environment around it. Especially since the villa is partly ‘pushed' into the mountainside, integration with nature is extremely important.
Located in the green area of Benahavís, but just far enough from the hustle, this is also your ideal zen location, where everything is still very accessible. 15km from Puerto Banús, 4km from Cancelada (the nearest village) and 13km from Estepona.
Contact us for more info!
Features
Orientation
- 
South
Setting
- 
Frontline Golf
- 
Urbanisation
Views
- 
Sea
- 
Mountain
- 
Golf
- 
Country
- 
Panoramic
Located in
Affordability
Calculate your monthly mortgage payments
Your est. monthly payment
Get Pre-QualifiedHomes-abroad collaborate with all major banks in Spain
Homes-abroad real estate, work with mortgage brokers and all major banks in Spain. Through this link you can apply for a mortgage in Spain.
Mortgage calculatorPurchase expenses
Our expenses calculator will provide an estimate of all costs involved in buying a house in Spain. Use these figures as a guideline only: the actual figures will vary according to the property's location and the bank you choose, among other factors. To the total, you must add your mortgage payments, and comisión de apertura if your bank charges it.
 
   
   
   
   
   
   
   
   
   
   
   
   
   
   
   
   
   
   
   
   
   
   
   
   
   
   
  