Detached Villa for sale in San Pedro de Alcántara

Property ID: R4975966

€695,000

2,199 €/m2


316
5
beds
3
baths
80
terrace
0
plot

High-Quality Villa in the area of ​​"La Quinta" El Gamonal in San Pedro de Alcántara, near Marbella and Puerto Banus.

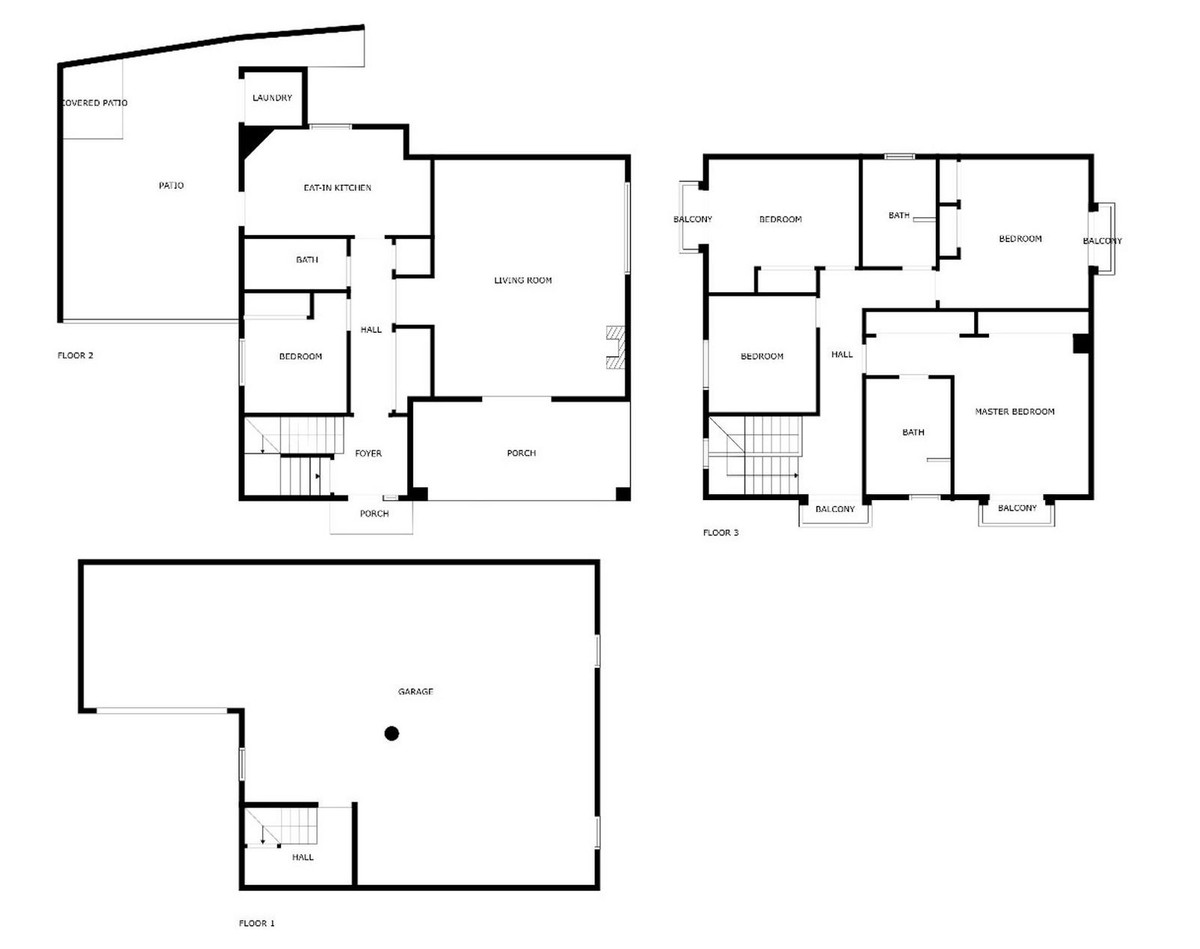
Discover this fantastic independent house with 316 m2 built on a 350 m2 plot.
On the ground floor there is 1 bedroom, bathroom, fully equipped kitchen made of wood and marble with access to the fully equipped barbecue area. And a large living room with a fireplace and access to the covered terrace and front garden.
On the upper floor we have 4 bedrooms and two bathrooms. Highlighting the large master bedroom with en-suite bathroom and two built-in wardrobes with solid wood doors.
The basement includes a garage and space of 120m2 with the possibility of equipping it with a gym, recreation room, cinema etc or even the option of making an apartment with an independent entrance from the street.
Noteworthy is its outdoor area with a garden and with the possibility of building a swimming pool.
Close to the charming shops, restaurants and the promenade where you can enjoy the sea breeze, sports and beach bars.

Enjoy the silence and the convenience to be near some of the most vibrant areas on the Costa del Sol. It's a perfect place to live all around the year or to have this beautiful villa as a vocational home.


Features

Climate control

  • Air Conditioning
  • fireplace
    Fireplace

Condition

  • Good

Features

  • Covered Terrace
  • dresser-wardrobe
    Fitted Wardrobes
  • bus-2
    Near Transport
  • Private Terrace
  • Solarium
  • WiFi
  • dresser-drawers-5
    Storage Room
  • home-improvement-12_1
    Utility Room
  • Ensuite Bathroom
  • Marble Flooring
  • Barbeque

Furniture

  • Optional

Garden

  • Private

Kitchen

  • Fully Fitted

Orientation

  • East
  • South East
  • South

Parking

  • Underground
  • Garage
  • Covered

Setting

  • Close To Golf
  • Close To Shops
  • shanty-house-village-1
    Close To Town
  • Close To Schools

Views

  • Street

Located in

Affordability

Calculate your monthly mortgage payments

Your est. monthly payment

Get Pre-Qualified

Homes-abroad collaborate with all major banks in Spain

Homes-abroad real estate, work with mortgage brokers and all major banks in Spain. Through this link you can apply for a mortgage in Spain.

Mortgage calculator

Purchase expenses

Our expenses calculator will provide an estimate of all costs involved in buying a house in Spain. Use these figures as a guideline only: the actual figures will vary according to the property's location and the bank you choose, among other factors. To the total, you must add your mortgage payments, and comisión de apertura if your bank charges it.

Total expenses

You might like these properties too