Townhouse for sale in San Roque Club

Property ID: R4980715

€799,000

2,854 €/m2


280
3
beds
2
baths
104
terrace
188
plot

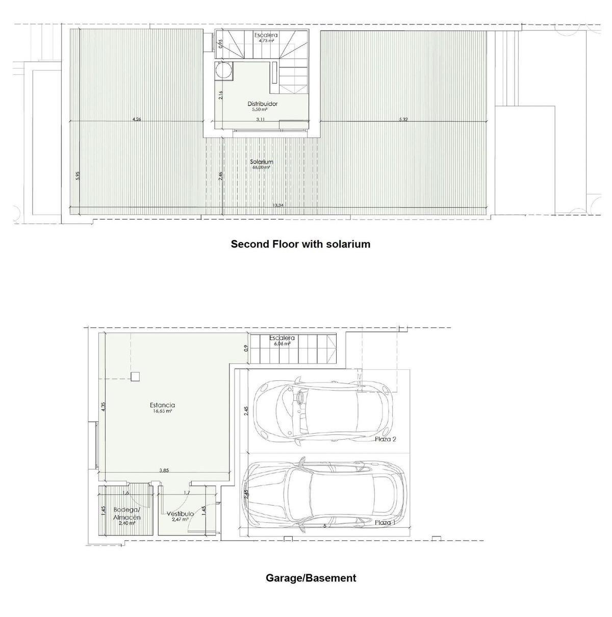
This exceptional townhouse, completed in 2022, offers contemporary living with stunning views of the prestigious San Roque Golf Club. With 180 m² of usable space, whether you're looking for a dream vacation home or a permanent residence, this property has it all. Featuring 3 spacious bedrooms, a stylish living and dining area, an open-concept kitchen, 2 bathrooms, a guest toilet, as well as storage space and 2 garage spaces, this home combines comfort and practicality.

The ground floor boasts a bright and airy living room that opens up to a large west-facing terrace and private garden, perfect for outdoor gatherings, with stunning views of the golf course. The sleek, modern kitchen is fully equipped with high-end appliances. Also on this level, you'll find a convenient guest WC and a useful storage room. Upstairs, the master bedroom comes with an en-suite bathroom and a private glazed balcony overlooking the golf course. Two additional well-sized bedrooms share a bathroom with a bathtub, and have access to a balcony with views of the community pool.

The spacious rooftop terrace, offers panoramic views of the sparkling sea, the well-maintained golf course, and the community area. Large, modern windows with aluminum frames flood the home with natural light, while an energy-efficient heat pump system ensures comfort throughout the year.

Situated in a secure, gated community with 24-hour security, this property offers both luxury and peace of mind. The complex features a gym, sauna, and a communal pool, all surrounded by beautifully landscaped gardens and cork oak trees. Located in a peaceful setting, it's just a short drive from Alcaidesa Beach and Sotogrande Marina.

This is a rare opportunity to live in one of the most sought-after locations in Spain. Don't miss your chance to own this exceptional property!


Features

Climate control

  • Air Conditioning

Condition

  • Excellent

Features

  • Covered Terrace
  • dresser-wardrobe
    Fitted Wardrobes
  • Private Terrace
  • Solarium
  • Gym
  • dresser-drawers-5
    Storage Room
  • home-improvement-12_1
    Utility Room
  • Ensuite Bathroom
  • cellar-3
    Basement

Garden

  • Communal
  • Private

Kitchen

  • Fully Fitted

Orientation

  • West

Parking

  • Garage
  • More Than One

Pool

  • Communal

Security

  • Gated Complex
  • 24 Hour Security
  • saving-safe-1
    Safe

Setting

  • Frontline Golf
  • Close To Golf
  • Urbanisation

Views

  • Sea
  • Golf
  • Garden

Located in

Affordability

Calculate your monthly mortgage payments

Your est. monthly payment

Get Pre-Qualified

Homes-abroad collaborate with all major banks in Spain

Homes-abroad real estate, work with mortgage brokers and all major banks in Spain. Through this link you can apply for a mortgage in Spain.

Mortgage calculator

Purchase expenses

Our expenses calculator will provide an estimate of all costs involved in buying a house in Spain. Use these figures as a guideline only: the actual figures will vary according to the property's location and the bank you choose, among other factors. To the total, you must add your mortgage payments, and comisión de apertura if your bank charges it.

Total expenses

You might like these properties too