
2,193 €/m2
This charming Spanish home is set entirely on one level and is located just a nine-minute drive from Almáchar. The road leading to the property is mostly paved, with the final four kilometers along a well-maintained dirt track. On arrival, you are welcomed by a covered terrace adorned with vibrant bougainvillea, offering breathtaking views of the surrounding mountain landscape dotted with vineyards and olive groves.
Inside, you step into a bright and inviting living area with a lounge, kitchen, and a cozy breakfast bar. The house exudes authenticity throughout, with wooden ceiling beams, original details above windows and doors, and continuous tiled flooring that creates a warm and harmonious atmosphere. The property has been excellently maintained.
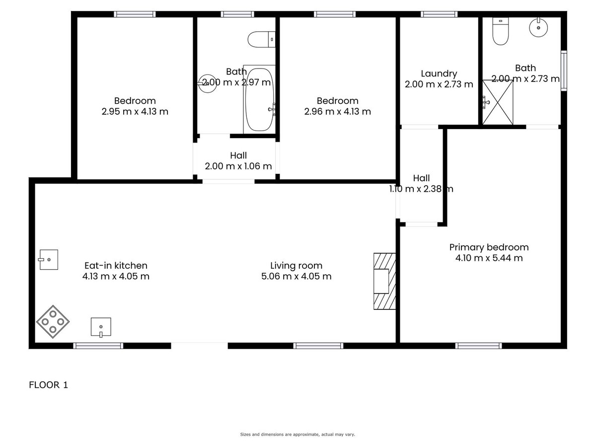
The layout includes three bedrooms and two bathrooms, with the master bedroom featuring its own ensuite. There is also a practical utility and storage room with sink and boiler. Outdoors, the garden offers a swimming pool (in need of some maintenance), a barbecue area, and additional storage space. The property also benefits from its own water source with a deposit, ensuring independence and convenience.
Parking is secure with a gated area directly by the house, complemented by an additional lockable parking space. In total, the plot measures 4,589 m², consisting of the main plot of 3,869 m² plus an additional 720 m² of land located just across the road, offering plenty of opportunities for planting, gardening, or further use.
Features
Climate control
-
Fireplace
Condition
-
Good
Features
-
Covered Terrace
-
Fitted Wardrobes
-
Private Terrace
-
WiFi
-
Storage Room
-
Ensuite Bathroom
-
Barbeque
Furniture
-
Fully Furnished
Garden
-
Private
Kitchen
-
Fully Fitted
Orientation
-
South
-
South West
Parking
-
Private
Pool
-
Private
Security
-
Gated Complex
Setting
-
Country
Utilities
-
Electricity
Views
-
Mountain
-
Country
-
Garden
-
Pool
Located in
Affordability
Calculate your monthly mortgage payments
Your est. monthly payment
Get Pre-QualifiedHomes-abroad collaborate with all major banks in Spain
Homes-abroad real estate, work with mortgage brokers and all major banks in Spain. Through this link you can apply for a mortgage in Spain.
Mortgage calculatorPurchase expenses
Our expenses calculator will provide an estimate of all costs involved in buying a house in Spain. Use these figures as a guideline only: the actual figures will vary according to the property's location and the bank you choose, among other factors. To the total, you must add your mortgage payments, and comisión de apertura if your bank charges it.