Detached Villa for sale in Benalmadena

Property ID: R5272795

€5,400,000

6,905 €/m2


782
4
beds
4
baths
213
terrace
1159
plot

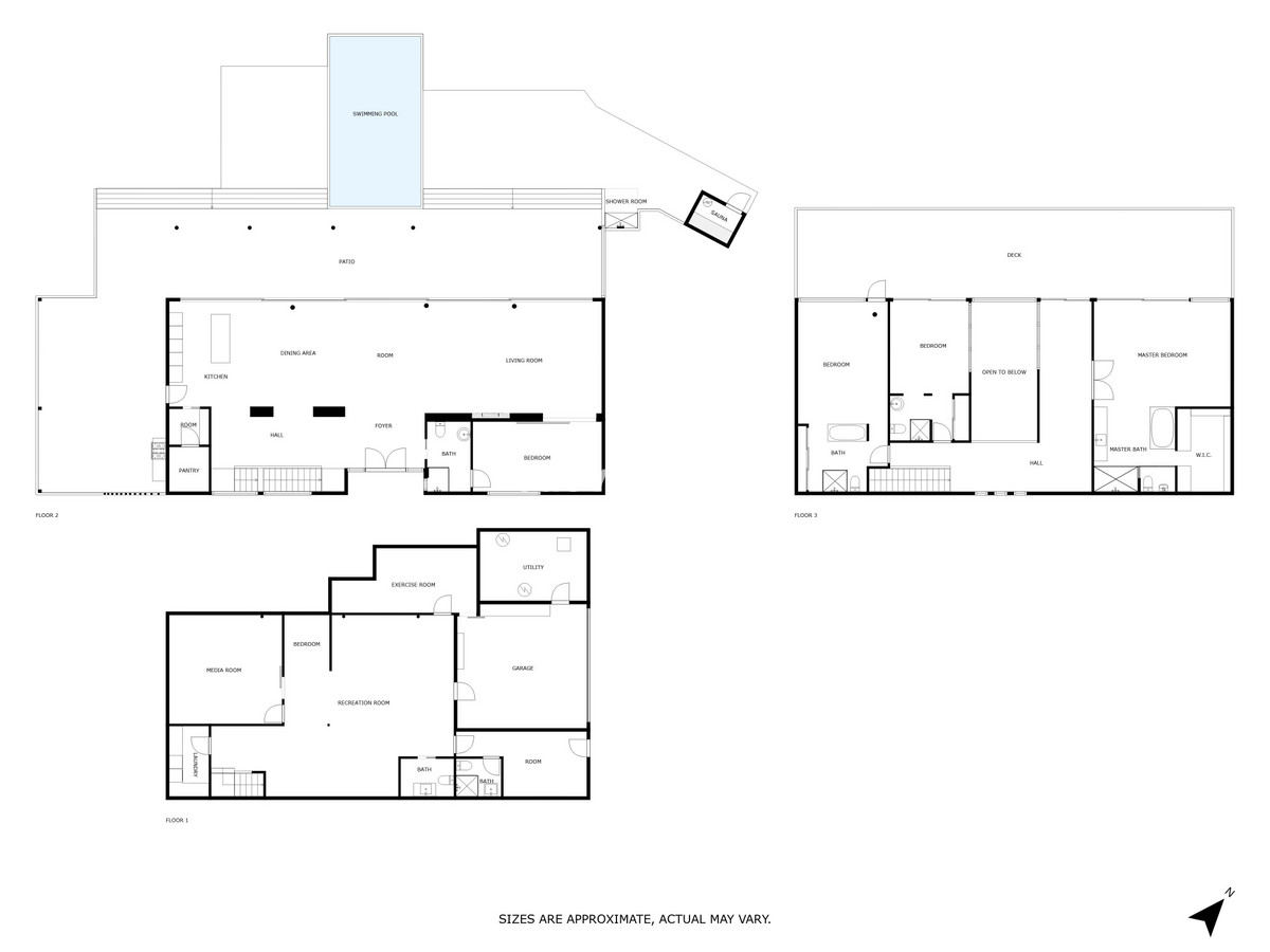
Nestled in the picturesque landscapes of El Higuerón, this unparalleled 5-bedroom, 5-bathroom villa is the epitome of modern elegance and timeless design. Boasting an array of splendid features and breathtaking views, this property redefines modern luxury in the heart of the Costa del Sol.

With it's sleek and contemporary architecture, this villa seamlessly blends with the natural beauty that surrounds it. The design emphasizes the use of natural light, creating a bright and airy atmosphere throughout the interior spaces.

Step inside, and you'll be greeted by expansive living areas that exude sophistication and comfort. The open-concept layout allows for seamless transitions from room to room, providing the ideal setting for both relaxation and entertainment.

One of the villa's most striking features is the infinity pool that seemingly merges with the Mediterranean horizon. Whether you're taking a refreshing dip or lounging on the expansive terrace, the panoramic views of the Mediterranean and Fuengirola are simply breathtaking. The fully glazed terrace provides comfort for enjoying the outdoors all year round.

Each of the five bedrooms is a sanctuary of its own. Spacious, elegantly designed, and featuring en-suite bathrooms, they offer the utmost in comfort and privacy for you and your guests.

This villa is not just a home; it's a sanctuary. Unwind in the sauna, watch your favorite movies in the cinema room, or challenge friends and family to a game in the dedicated game room. Every amenity has been thoughtfully designed to cater to your every need. Your vehicles are well taken care of with a secure and spacious two-car garage.

This exclusive villa in El Higuerón is more than just a property; it's a lifestyle. Experience the pinnacle of luxury living in the Reserva del Higueron, where modern design, natural light, Scandinavian decor and unparalleled amenities come together in perfect harmony. Make this villa your haven and enjoy a life of tranquility, sophistication, and absolute comfort.


Features

Climate control

  • Air Conditioning
  • Hot A/C
  • Cold A/C
  • Central Heating
  • fireplace
    Fireplace
  • U/F Heating

Condition

  • Excellent

Features

  • Covered Terrace
  • dresser-wardrobe
    Fitted Wardrobes
  • bus-2
    Near Transport
  • Private Terrace
  • WiFi
  • Gym
  • Sauna
  • board-game
    Games Room
  • dresser-drawers-5
    Storage Room
  • home-improvement-12_1
    Utility Room
  • Ensuite Bathroom
  • wood-material-1
    Wood Flooring
  • Barbeque
  • Double Glazing
  • Courtesy Bus
  • Near Church
  • cellar-3
    Basement

Furniture

  • Fully Furnished

Garden

  • Private

Kitchen

  • Fully Fitted

Orientation

  • South East
  • South
  • South West

Parking

  • Garage
  • Private

Pool

  • Private

Security

  • Gated Complex
  • Electric Blinds
  • Alarm System
  • 24 Hour Security

Setting

  • shanty-house-village-1
    Town
  • Beachside
  • Close To Golf
  • Close To Port
  • Close To Shops
  • Close To Sea
  • shanty-house-village-1
    Close To Town
  • Close To Schools
  • Close To Marina
  • Urbanisation

Utilities

  • wall-socket
    Electricity

Views

  • Sea
  • Mountain
  • Port
  • Panoramic
  • Garden
  • Pool
  • Urban

Located in

Affordability

Calculate your monthly mortgage payments

Your est. monthly payment

Get Pre-Qualified

Homes-abroad collaborate with all major banks in Spain

Homes-abroad real estate, work with mortgage brokers and all major banks in Spain. Through this link you can apply for a mortgage in Spain.

Mortgage calculator

Purchase expenses

Our expenses calculator will provide an estimate of all costs involved in buying a house in Spain. Use these figures as a guideline only: the actual figures will vary according to the property's location and the bank you choose, among other factors. To the total, you must add your mortgage payments, and comisión de apertura if your bank charges it.

Total expenses

You might like these properties too