Commercial Plot for sale in Mijas

Property ID: R5274217

€1,500,000

€/m2


0
0
beds
0
baths
0
terrace
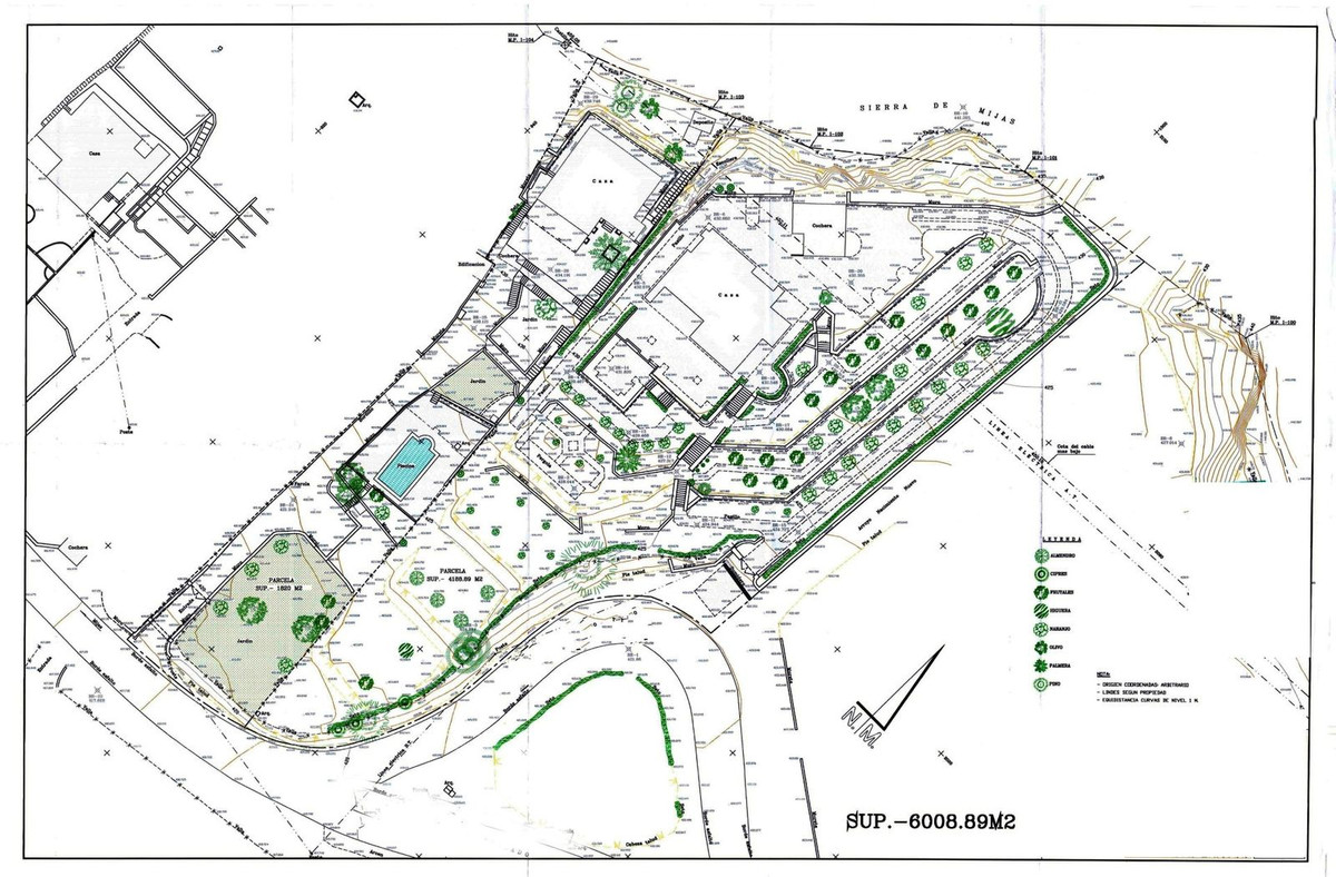
6009
plot

Urban Development Land – Mijas Pueblo – Costa del Sol.

Magnificent urban plot for sale in a highly sought-after area. The plot is surrounded by mature trees, ensuring privacy. One minute by car from the centre of Mijas Pueblo.

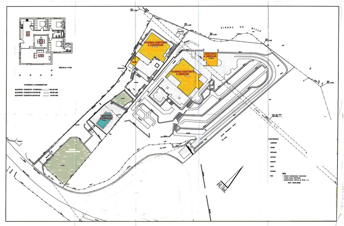
A Detailed Development Study ("Estudio de Detalle) has already been approved to build 11 townhouses and 1 villa.
________________________________________
Technical Data:

• The plot is located in sector U.E. S-19 of Mijas
• It complies with all boundary limits established in the alignment plans
• Total surface area: 6,008.89 m² according to IBI records (4,188.89 m² + 1,820.00 m²)
________________________________________
According to the Mijas PGOU, the following construction limits apply:

• Building coefficient: 0.35 m²/m²
• Number of permitted properties: 1 residence per 500 m²
• Maximum number of floors: 2

TOTAL BUILDABLE AREA ACCORDING TO PGOU: 2,103.11 m² (maximum 12 dwellings)
________________________________________
The approved Detailed Development Study proposes:

• Buildable area: 1,918.74 m²
• Number of dwellings: 12
• Maximum height: 2 floors
• Plot coverage: 21.14%
• Parking spaces: 18
________________________________________
The PGOU classifies the plots as AIS-3. According to Article 229, section 4b of the PGOU, developments of semi-detached single-family housing (ADS) are permitted, processed through a Detailed Development Study.
The minimum plot size required for such developments in the AIS-3 Subzone is 4,000 m². In this case, the plot has 6,008.89 m².


Features

Condition

  • New Construction

Orientation

  • South East
  • South

Pool

  • Room For Pool

Security

  • Gated Complex

Setting

  • Country
  • shanty-house-village-1
    Village
  • Close To Shops
  • Close To Schools
  • Close To Forest

Utilities

  • wall-socket
    Electricity
  • Drinkable Water

Views

  • Sea
  • Mountain
  • Country
  • Panoramic

Located in

Affordability

Calculate your monthly mortgage payments

Your est. monthly payment

Get Pre-Qualified

Homes-abroad collaborate with all major banks in Spain

Homes-abroad real estate, work with mortgage brokers and all major banks in Spain. Through this link you can apply for a mortgage in Spain.

Mortgage calculator

Purchase expenses

Our expenses calculator will provide an estimate of all costs involved in buying a house in Spain. Use these figures as a guideline only: the actual figures will vary according to the property's location and the bank you choose, among other factors. To the total, you must add your mortgage payments, and comisión de apertura if your bank charges it.

Total expenses

You might like these properties too