Land for sale in Sotogrande

Property ID: R5315077

€800,000

800 €/m2


1,000
0
beds
0
baths
0
terrace
3315
plot

Elevated plot with uninterrupted golf and lake views in Sotogrande Alto.
Located in the Almenara area of Sotogrande Alto, just steps from SO Sotogrande and within close proximity to the Sotogrande International School, this 3,315 m² plot enjoys a privileged south west orientation and open front views over the Alto Club golf course and its lake.
The plot is elevated, ensuring privacy and uninterrupted views, and is surrounded by high quality completed villas, consolidating the residential character of the area. Its orientation allows for optimal light throughout the day and ideal positioning of terraces, pool and main living areas.
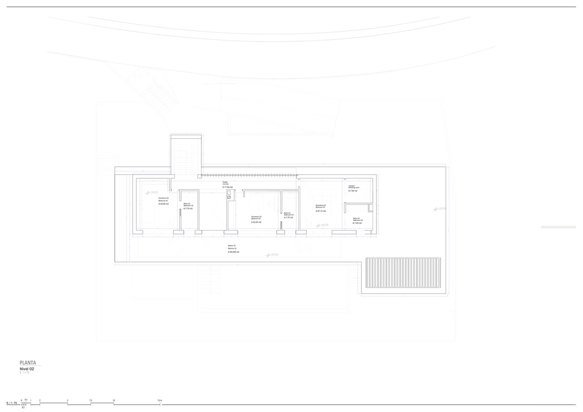
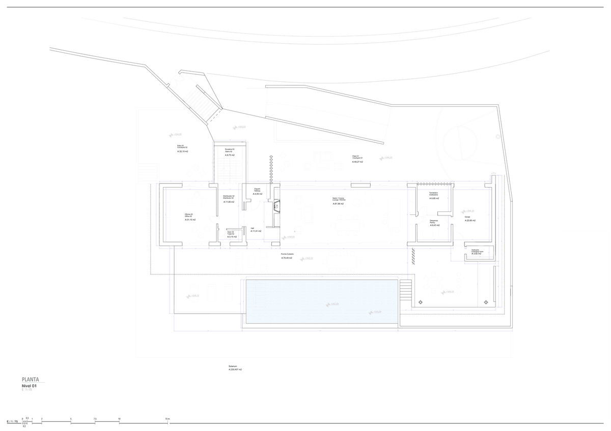
With 33 percent buildability, the plot allows for approximately 1,000 m² of construction, offering the possibility to create a substantial contemporary residence. The sale includes a fully developed architectural project by Casasola Arquitectos, known for refined modern design and strong integration between architecture and landscape.
The project has already been granted building licence, allowing immediate commencement of construction. All utilities are onsite and a complete landscaping project is included in the sale, providing clarity and efficiency from day one.
Ownership is ready to transfer, making this a streamlined acquisition for a buyer seeking a prime location in Sotogrande Alto with immediate development potential and no planning uncertainty.
*The images presented are for reference only and may vary from the final product.


Features

Climate control

  • Air Conditioning
  • Central Heating

Features

  • lift
    Lift
  • dresser-wardrobe
    Fitted Wardrobes
  • bus-2
    Near Transport
  • Private Terrace
  • Gym
  • dresser-drawers-5
    Storage Room
  • Day Care

Garden

  • Private

Parking

  • Garage

Pool

  • Private

Security

  • 24 Hour Security

Setting

  • Close To Golf
  • Close To Schools

Views

  • Mountain
  • Golf
  • Panoramic
  • Garden

Located in

Affordability

Calculate your monthly mortgage payments

Your est. monthly payment

Get Pre-Qualified

Homes-abroad collaborate with all major banks in Spain

Homes-abroad real estate, work with mortgage brokers and all major banks in Spain. Through this link you can apply for a mortgage in Spain.

Mortgage calculator

Purchase expenses

Our expenses calculator will provide an estimate of all costs involved in buying a house in Spain. Use these figures as a guideline only: the actual figures will vary according to the property's location and the bank you choose, among other factors. To the total, you must add your mortgage payments, and comisión de apertura if your bank charges it.

Total expenses

You might like these properties too