€995,000

2,787 €/m2


357
4
beds
3
baths
150
terrace
22000
plot

Modern Detached Villa in a Unique Location
A modern detached villa, less than 17 years old, situated in a truly unique spot. Located just 25 km from the beaches of Marbella and only 5 minutes from the charming village of Guaro! During construction in 2009, the Dutch owners at the time left nothing to chance. The property was built to Northern European standards, featuring fully insulated floors, walls, and roofs. Only the finest materials were used, resulting in a perfect and unique country villa.

Technical Highlights and Extras:
Comfort: Central heating and air conditioning in all rooms.
Quality: PVC window frames (tilt-and-turn) with double bulletproof glass, mosquito nets, and aluminum shutters.
Exterior: 92 outdoor light points (individually adjustable via timers) and 32 outdoor water taps.
Sustainability: Rainwater collection in an 8,000-liter reservoir.
Security: Automatic gate with camera system and CCTV surveillance around the entire property.
Facilities: Private sauna and Starlink internet connection.

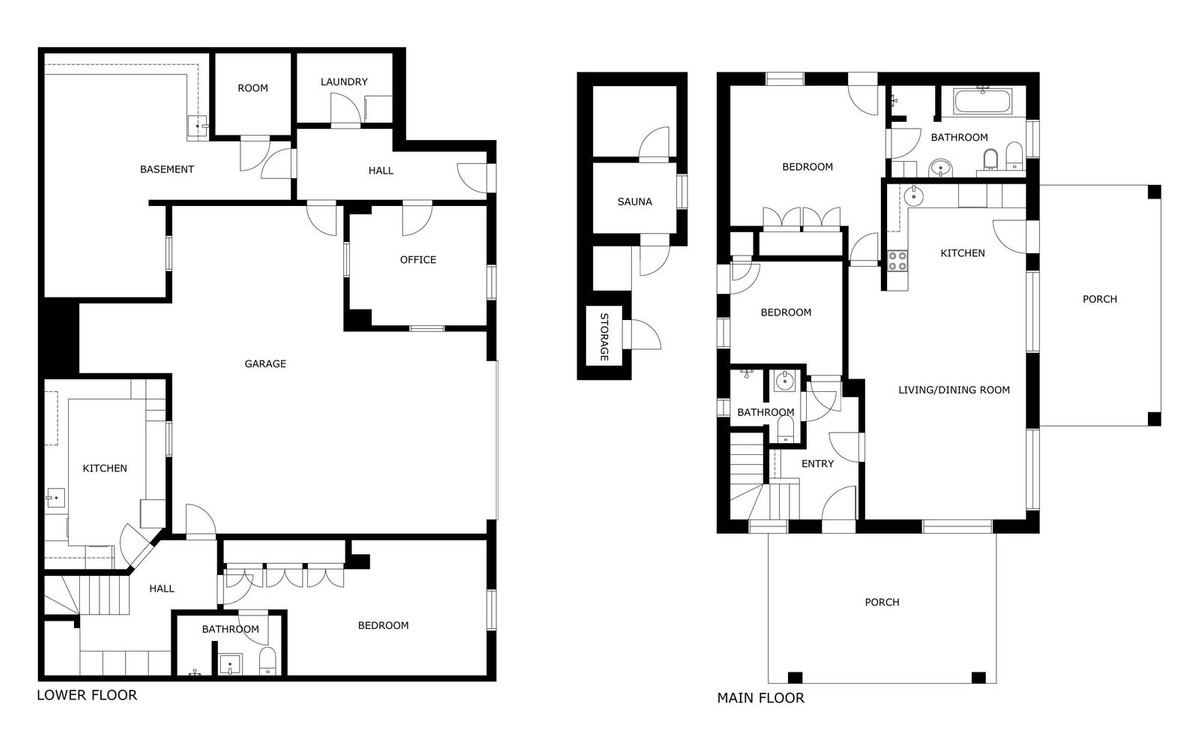
Beyond the technical sophistication, this is above all a fantastic, spacious villa with a living area of nearly 300 m², spread over two floors.
Through the veranda, you enter the central hall, which provides access to the living room, a guest toilet, and a guest bedroom. The living room is characterized by large windows that make you feel as if you are sitting inside a painting; the views are phenomenal in every direction. The living room features central heating, air conditioning, and a high-quality open-plan kitchen (German-made) with built-in Bosch appliances. You can also enjoy the stunning views from the dining area. The kitchen has its own door leading to the covered terrace on the side of the house.
On this same level, you will find the master bedroom with an ensuite bathroom and a large built-in wardrobe. This room offers direct access to the pool and breathtaking views.
A marble staircase leads to the lower level. Here you will find a guest apartment with an ensuite bathroom and its own spacious kitchen. Next to the guest quarters, passing through the massive garage (55 m²!), is a fourth bedroom, that can also be used as an office. Additionally, this level houses the technical room (with the pool pump) and a storage/workshop area of 30 m². Given the space and the existing plumbing, this floor offers ample possibilities to create 2 or 3 extra guest rooms—ideal for starting a B&B.

The terrace with the generous swimming pool is enchanting, offering views of the Sierra de las Nieves and the surrounding valleys. There is plenty of space around the pool for seating and sunbeds. Here you will also find the spacious sauna, an outdoor shower, and a toilet. A set of stairs leads to a private "hide-away" with a lounge chair—the perfect spot to enjoy the sunset with a glass of wine.
The plot exceeds 22,000 m². Behind the house is a large parking area that is also suitable for use as a helicopter landing pad. The garden is beautifully landscaped with cozy seating areas and masonry stairs throughout. Here, too, everything has been finished to perfection. Adjacent to the parking area is the storage for the gas bottles for the central heating.
In short: This villa is a rare find in the "campo." It offers quality and pure living pleasure in one of the most beautiful locations in the Guadalhorce Valley.


Features

Climate control

  • Air Conditioning
  • Hot A/C
  • Cold A/C
  • Central Heating

Condition

  • Excellent

Features

  • Covered Terrace
  • Private Terrace
  • WiFi
  • Sauna
  • Guest Apartment
  • dresser-drawers-5
    Storage Room
  • home-improvement-12_1
    Utility Room
  • Ensuite Bathroom
  • Marble Flooring
  • Double Glazing

Furniture

  • Part Furnished

Garden

  • Private

Kitchen

  • Fully Fitted

Orientation

  • North
  • North East
  • East
  • South East
  • South
  • South West
  • West
  • North West

Parking

  • Garage
  • Covered
  • More Than One
  • Private

Pool

  • Private

Security

  • Electric Blinds
  • mobile-phone-blackberry-2
    Entry Phone
  • Alarm System

Setting

  • Country

Utilities

  • wall-socket
    Electricity
  • Drinkable Water
  • Telephone

Views

  • Mountain
  • Country
  • Panoramic

Located in

Affordability

Calculate your monthly mortgage payments

Your est. monthly payment

Get Pre-Qualified

Homes-abroad collaborate with all major banks in Spain

Homes-abroad real estate, work with mortgage brokers and all major banks in Spain. Through this link you can apply for a mortgage in Spain.

Mortgage calculator

Purchase expenses

Our expenses calculator will provide an estimate of all costs involved in buying a house in Spain. Use these figures as a guideline only: the actual figures will vary according to the property's location and the bank you choose, among other factors. To the total, you must add your mortgage payments, and comisión de apertura if your bank charges it.

Total expenses

You might like these properties too