Finca - Cortijo for sale in Alora

Property ID: R5330668

€699,000

2,453 €/m2


285
4
beds
4
baths
0
terrace
17867
plot

Set in the peaceful rolling countryside with sweeping views across the valley towards the charming village of Álora, this beautiful country property offers the perfect blend of rural tranquillity, space, and income potential.

Just a 10-minute drive from the village and train station, with a direct connection to Málaga, the property enjoys a wonderfully private setting while still being conveniently close to amenities and transport links.

The estate sits on almost 18,000m² of flat, usable land, making it ideal for a wide variety of rural lifestyles. Whether you dream of keeping horses, cultivating crops, creating gardens, or simply enjoying the freedom of open countryside, this land provides endless possibilities.

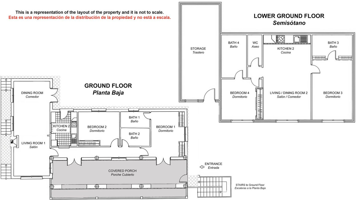
The house itself has been thoughtfully designed and is divided into two independent apartments, making it ideal for extended family living or for generating rental income while maintaining privacy.
The upper apartment features two comfortable bedrooms and two bathrooms, along with a fully equipped kitchen and a bright living and dining area centred around a cosy log fireplace. From here, doors open onto a covered veranda, the perfect place to relax and take in the stunning panoramic views across the surrounding countryside and towards Álora.

The lower apartment offers a spacious open-plan living area combining living room, dining space and kitchen, along with two bedrooms—each with its own ensuite bathroom—and an additional guest toilet. Large double doors from both the living area and bedrooms lead directly out to the private swimming pool terrace, creating a seamless indoor-outdoor living experience.

On this level there is also a large storeroom, which could easily be converted into an additional bedroom with ensuite bathroom, as well as a garage, adding further flexibility to the property.

Built to a high standard, the home benefits from municipal water supply, mains electricity, and importantly holds the First Occupation Licence, offering peace of mind for both residential use and potential rentals.

Combining spectacular views, extensive usable land, flexible accommodation and excellent access to Málaga, this is a wonderful opportunity for anyone seeking a true Andalusian country lifestyle with the added advantage of rental potential.


Features

Climate control

  • Air Conditioning

Condition

  • Excellent

Features

  • Covered Terrace
  • dresser-wardrobe
    Fitted Wardrobes
  • Private Terrace
  • Guest Apartment
  • dresser-drawers-5
    Storage Room
  • Double Glazing

Furniture

  • Optional

Garden

  • Private

Kitchen

  • Fully Fitted

Orientation

  • South

Parking

  • Garage
  • Open
  • More Than One
  • Private

Pool

  • Private

Setting

  • Country

Utilities

  • wall-socket
    Electricity
  • Drinkable Water

Views

  • Mountain
  • Country
  • Garden

Located in

Affordability

Calculate your monthly mortgage payments

Your est. monthly payment

Get Pre-Qualified

Homes-abroad collaborate with all major banks in Spain

Homes-abroad real estate, work with mortgage brokers and all major banks in Spain. Through this link you can apply for a mortgage in Spain.

Mortgage calculator

Purchase expenses

Our expenses calculator will provide an estimate of all costs involved in buying a house in Spain. Use these figures as a guideline only: the actual figures will vary according to the property's location and the bank you choose, among other factors. To the total, you must add your mortgage payments, and comisión de apertura if your bank charges it.

Total expenses

You might like these properties too