Land for sale in Coín

Property ID: R5351254

€119,000

€/m2


0
0
beds
0
baths
0
terrace
412
plot

Urban plot in Sierra Chica (Coín) of 412 sqm, including an officially approved project for a detached villa with private swimming pool.Located in a fully developed residential area with all utilities available (water, electricity, sewage, street lighting). Project for a 2-storey villa plus basement and private pool, ready to reactivate the building license and start construction.

???? Location & Surroundings
The plot is located in Sierra Chica Urbanization, Coín (Málaga), a growing residential area with good connections and a environment.

Asphalted roads, pavements and street lighting
Area of detached single-family homes
Direct vehicle access to the plot
Fully serviced area (water, electricity, sewage)

???? Plot Features
Plot size: 412.68 sqm
Urban land (consolidated urban area)
Use: Residential (detached villa)
Buildability: approx. 215.74 sqm (buildable area)

???? Ready to build – no further urban development required.
????️ PROJECT INCLUDED

The property includes a fully approved architectural project for a detached villa with swimming pool, representing significant savings in time and costs.

Approved by the Official College of Architects of Málaga
Detached single-family villa
2 floors + basement
Private swimming pool

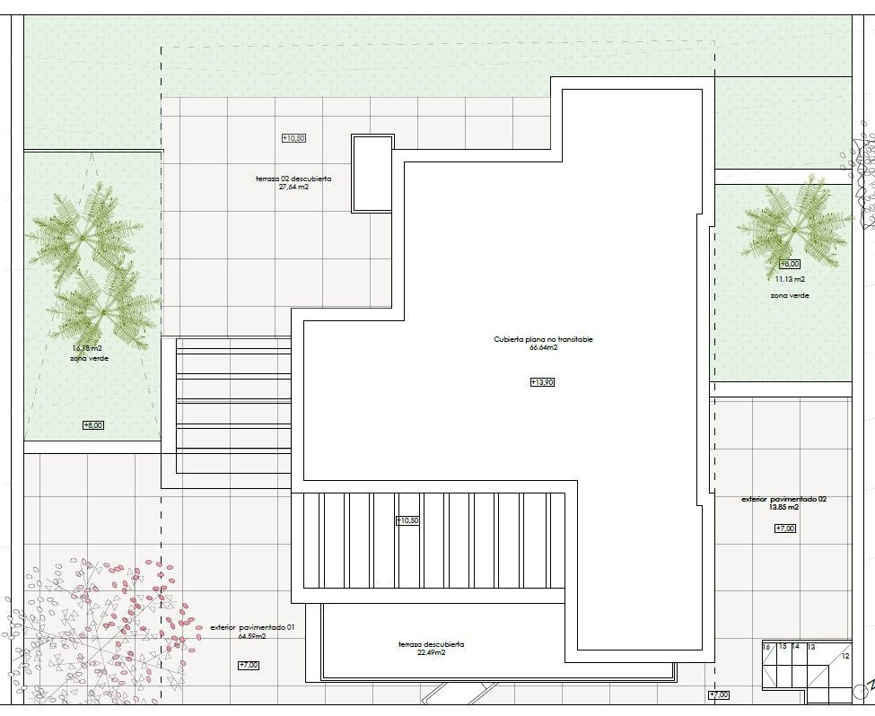
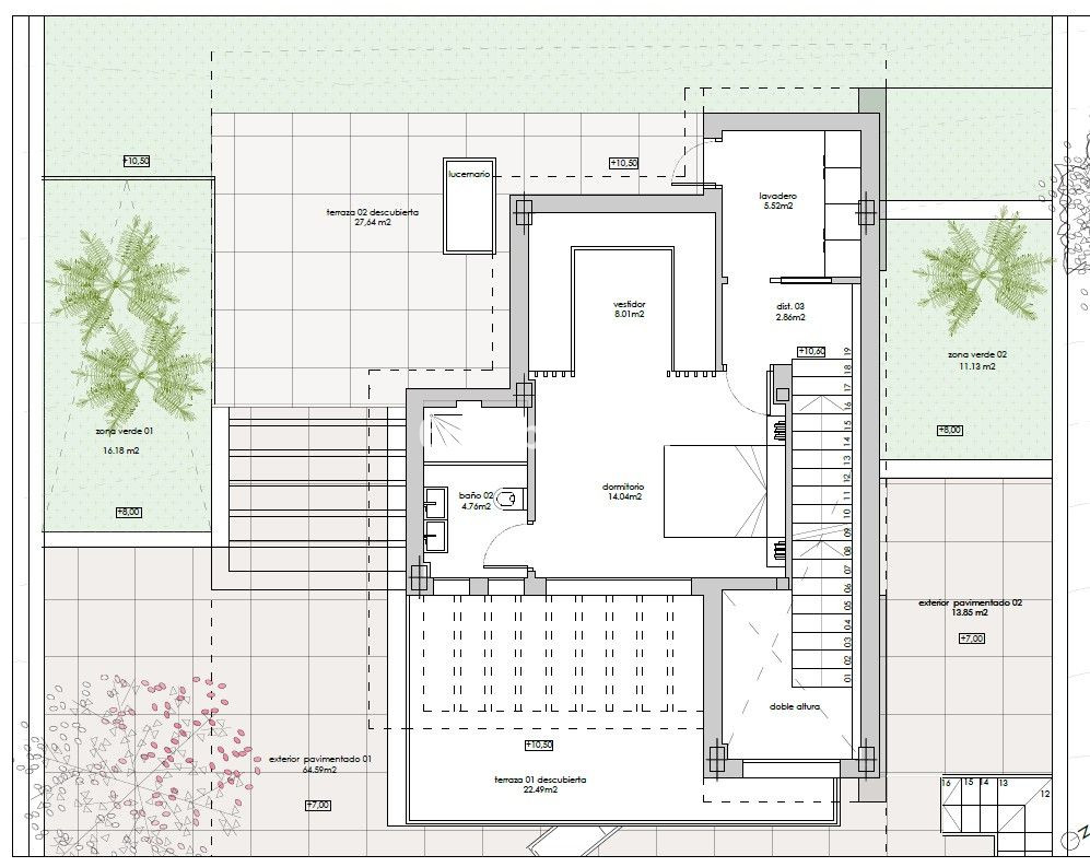
???? Layout of the Projected Villa

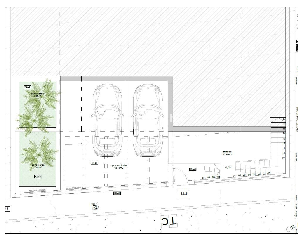
Basement:
Garage for 2 cars

Ground Floor:
Spacious living room
Open-plan kitchen & dining area
Bathroom
Office
Covered porch

First Floor:
Master bedroom
Walk-in wardrobe
Bathroom
Laundry room
2 terraces

???? Modern, functional home designed for comfortable family living

???? Project Surfaces
Built area (above ground): approx. 152 sqm
Basement: approx. 46 sqm
Total built area: approx. 205 sqm
Swimming pool: 12.5 sqm

Additionally:
Garden areas
Large terraces and outdoor spaces

⚙️ Technical Specifications & Quality
Reinforced concrete structure
Thermal and acoustic insulation compliant with Spanish building regulations (CTE)
PVC exterior carpentry
Double glazing
Solar energy system for hot water
Energy efficiency compliant

???? Project designed to meet current regulations and energy efficiency standards


Located in

Affordability

Calculate your monthly mortgage payments

Your est. monthly payment

Get Pre-Qualified

Homes-abroad collaborate with all major banks in Spain

Homes-abroad real estate, work with mortgage brokers and all major banks in Spain. Through this link you can apply for a mortgage in Spain.

Mortgage calculator

Purchase expenses

Our expenses calculator will provide an estimate of all costs involved in buying a house in Spain. Use these figures as a guideline only: the actual figures will vary according to the property's location and the bank you choose, among other factors. To the total, you must add your mortgage payments, and comisión de apertura if your bank charges it.

Total expenses

You might like these properties too