Detached Villa for sale in Algorfa

Property ID: RED-N7615

€239,000

3,319 €/m2


72
2
beds
2
baths
0
plot

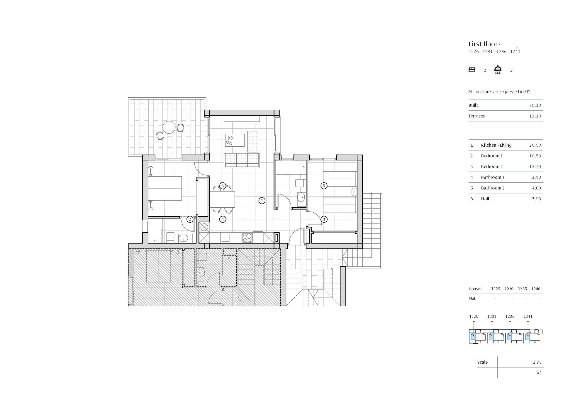
NEW BUILD RESIDENTIAL IN LA FINCA GOLF New Build residential complex of bungalow apartments and townhouses in La Finca golf. Modern bungalows has 2 bedrooms, 2 bathrooms, open plan kitchen integrated with the living area connecting the bedrooms, bathrooms and terrace. Ground floor bungalows has terraces and gardens, top floor bungalows has terraces and solariums on the upper floor. Its south orientation provides natural lighting at any time of the year and natural heating from dawn to sunset, which reduces energy consumption. The opened concept properties with windows and sliding doors that allows cross ventilation and lets the light in. The properties are situated so, that the light can enter everywhere, but at the same time it offers some fresh and cozy corners. New development takes place on an incredible plot where homes have been implemented with a careful design and large spaces to achieve maximum comfort. Its design focuses on the comfort and well-being of its residents and combines contemporary style and Mediterranean character, inheriting traditional morphology with the use of stones on the façade and canopies. Kitchens will be delivered fully furnished with a current design of high-capacity high and low furniture. The base units are in white matte lacquered laminate and the upper units in melamine wood with texture on the columns. Semi-hidden handle profile with gola* system. Countertop in work area and peninsula Quarz Compac Blanco Luna or similar. Armoured main door with white lacquered finish on the interior leaf and brown texture on the exterior. Optical peephole and security lock. White lacquered interior doors, with a three-strip front and rectangular stainless steel handlers. Built-in wardrobes with white sliding doors. Windows and sliding doors in brown aluminium carpentry with a textured finish. Tilt-and-turn windows in bathrooms, with frosted effect glass and manual blinds. Electric and motorized blinds, finished in brown textured aluminium. All blinds are connected to the home automation system and are synchronized to close and open, and can be operated from the App. Special double glazing with solar control and low emissivity, to make the most of natural light and save on energy costs. Optimal aesthetic appearance, exceptional colour and minimal reflection. Energy certification class A Properties offers a high level of energy certification. This is possible thanks to the thermal insulation of roofs and walls, the aluminium joinery with double glazing, and the installation of 5 solar panels by block The homes are equipped with electrical and telecommunications outlets required by the Low Voltage Electrotechnical Regulations. Intercom for communication between the home and the main entrance. We include an advanced home automation system to control the motorized blinds and three light points. Legrand Valena Next series mechanisms that can be connected to the home automation system. Air-conditioning pre-installation: central or split depending of the model. Fully fitted alarm system with one sensor by room, touch panel and siren. New development is located at La Finca Golf. It is placed next to the first line of golf facing the 11th fairway at La Finca Golf course, one of the most emblematic complexes in the southeast of Spain and a common refuge for golf lovers. Located just 4 minutes from Algorfa, in Costa Blanca South, this complex with indoor parking, community pool and garden areas is the perfect place for those who want to enjoy the Mediterranean lifestyle: proximity to the beach, golf and mountains, surrounded by tranquillity, but with access to all types of services and leisure areas. Few minutes away from the most beautiful beaches of the southern Costa Blanca and places of exceptional beauty such as the Laguna Rosa de Torrevieja or the Dunes of Guardamar del Segura. Its proximity and easy access to the AP-7 highway and main national roads connect complex with numerous towns on the Costa Blanca such as Orihuela, Cartagena, Elche, Murcia and Alicante. The airports of Alicante and Murcia are less than 30 minutes driving with connections to the main European capitals.

Features

Climate control

  • Air Conditioning

Features

  • Double Glazing
  • Solarium
  • dresser-wardrobe
    Fitted Wardrobes

Furniture

  • Fully Furnished

Setting

  • Close To Golf
  • Close To Sea
  • shanty-house-village-1
    Close To Town
  • Close To Marina

Located in

Affordability

Calculate your monthly mortgage payments

Your est. monthly payment

Get Pre-Qualified

Homes-abroad collaborate with all major banks in Spain

Homes-abroad real estate, work with mortgage brokers and all major banks in Spain. Through this link you can apply for a mortgage in Spain.

Mortgage calculator

Purchase expenses

Our expenses calculator will provide an estimate of all costs involved in buying a house in Spain. Use these figures as a guideline only: the actual figures will vary according to the property's location and the bank you choose, among other factors. To the total, you must add your mortgage payments, and comisión de apertura if your bank charges it.

Total expenses

You might like these properties too