Apartment for sale in Los Alcazares

Property ID: RED-N9641

€339,000

3,988 €/m2


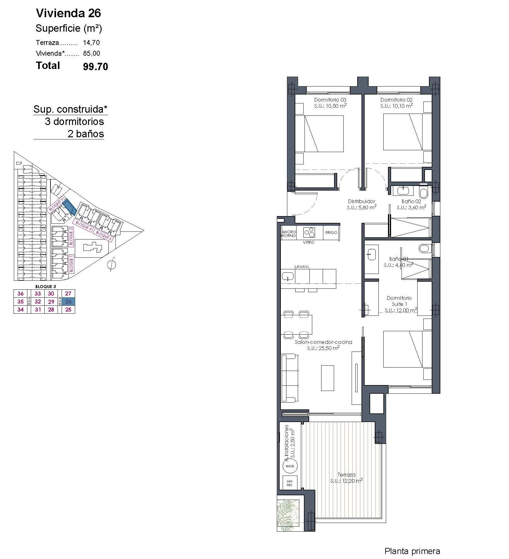
85
3
beds
2
baths
0
plot

New Build Resort Apartments at La Serena Golf-Los Alcazares Near the Beach Modern Golf Front Living on the Costa Calida Discover this exclusive new build residential resort located at La Serena Golf in Los Alcazares. This contemporary development features 66 stylish apartments with 2 or 3 bedrooms and 2 bathrooms, one of them en suite, designed to offer comfort, elegance and an exceptional Mediterranean lifestyle just 300 meters from the Mar Menor. Los Alcazares is a charming coastal town known for its relaxed atmosphere, sandy beaches and long seaside promenade. With more than 300 days of sunshine per year, the area offers a perfect environment for outdoor living, water sports and golf. The town also provides a wide selection of restaurants, shops, marinas and sports facilities, making it a highly desirable destination for both permanent residence and holiday homes. Apartments with Terraces, Gardens and Private Solariums The residential complex offers several property types to suit different lifestyles. Buyers can choose between ground floor apartments with private gardens, middle floor homes with spacious terraces or penthouses with terraces and large rooftop solariums. The solariums include an outdoor shower and offer the option to add a summer kitchen and private jacuzzi, creating an ideal space for relaxation and entertaining while enjoying open views of the golf course and surrounding landscape. Each home has been designed with bright interiors and open plan living spaces that connect seamlessly with the outdoor areas. Resort Style Amenities and Exceptional Communal Areas One of the most distinctive features of this development is its resort style concept. Residents can enjoy a spectacular lagoon style swimming pool of approximately 190 m2 with beach style access and relaxing areas with Balinese beds. Additional communal facilities include landscaped gardens, a spa area, gym and sauna located in the basement level. The complex also offers a children playground, two petanque courts and communal restrooms near the pool area, creating a welcoming environment for residents and guests. Quality Finishes and Modern Features The apartments are built with modern materials and high quality specifications designed for comfort and style. Fully equipped kitchen with white glass finish appliances Bathrooms with vanity units, shower screens and backlit mirrors Motorized window shutters Basic lighting package Fully installed ducted air conditioning Underground parking space for each property Underground bicycle parking and optional storage rooms Prime Location Close to Beach and Golf Mar Menor beach 0.3 km La Serena Golf next to the development Los Alcazares town center 2 km Cartagena 22 km Murcia 40 km Region de Murcia International Airport 30 km Alicante Elche Airport 90 km The calm and shallow waters of the Mar Menor are ideal for swimming, sailing and paddle surfing throughout the year. Secure Your Home at La Serena Golf Resort These modern apartments combine beachside living, golf views from most units and resort style amenities in one of the most attractive areas of the Costa Calida. Contact us today to receive more information or arrange a visit and secure your new home in La Serena Golf-Los Alcazares.

Features

Features

  • lift
    Lift
  • Private Terrace
  • Gym
  • home-improvement-12_1
    Utility Room

Parking

  • Private

Pool

  • Communal

Security

  • Gated Complex

Setting

  • Close To Sea
  • Close To Golf
  • Close To Schools
  • Close To Shops

Located in

Affordability

Calculate your monthly mortgage payments

Your est. monthly payment

Get Pre-Qualified

Homes-abroad collaborate with all major banks in Spain

Homes-abroad real estate, work with mortgage brokers and all major banks in Spain. Through this link you can apply for a mortgage in Spain.

Mortgage calculator

Purchase expenses

Our expenses calculator will provide an estimate of all costs involved in buying a house in Spain. Use these figures as a guideline only: the actual figures will vary according to the property's location and the bank you choose, among other factors. To the total, you must add your mortgage payments, and comisión de apertura if your bank charges it.

Total expenses

You might like these properties too